Ideal starter near shops, schools and good transport links.
Chain-free and newly renovated with new roof and double glazing
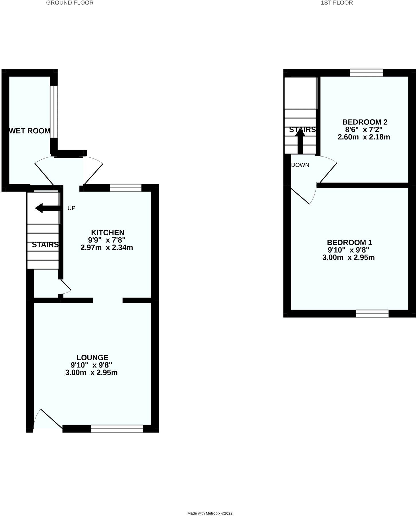
This compact two-bedroom mid-terrace on Fore Street offers an affordable, low-maintenance entry into Torquay living. Recently renovated with a new roof and double glazing, the property is chain-free and ready for immediate occupation or let. Rooms are modest but arranged efficiently across two storeys, making this suitable for a first-time buyer or a straightforward buy-to-let purchase.
The layout includes a front living room with a log burner, a small rear kitchen and a wet room on the ground floor, with two bedrooms above. The home benefits from mains gas central heating and excellent mobile and broadband connectivity. On-street parking is available nearby and local shops, health services and good primary schools are within walking distance.
Buyers should note the compact internal footprint (approx. 325 sq ft) and the absence of an external garden or substantial outdoor space. The property is built before 1900 with stone/brick walls likely lacking modern cavity insulation, so consider potential insulation improvements and finish upgrades. The surrounding area scores high for deprivation, which may affect resale or rental premiums.
For a buyer seeking an affordable foothold in Torquay, this terraced cottage delivers immediate usability with scope for modest cosmetic upgrades to increase comfort and value. Structural and services surveys are recommended to confirm condition and boundaries before purchase.
2 bedroom terraced house for sale in Union Street, Torquay, TQ2 — £160,000 • 2 bed • 1 bath • 577 ft²
2 bedroom terraced house for sale in Warberry Vale, Torquay, TQ1 — £170,000 • 2 bed • 1 bath • 743 ft²
2 bedroom terraced house for sale in Ellacombe Church Road, Ellacombe, Torquay, Devon, TQ1 — £200,000 • 2 bed • 1 bath • 695 ft²
2 bedroom terraced house for sale in Glebeland Way, Torquay, Devon, TQ2 — £185,000 • 2 bed • 1 bath • 558 ft²
2 bedroom end of terrace house for sale in Babbacombe Road, Torquay, TQ1 — £270,000 • 2 bed • 1 bath • 850 ft²
3 bedroom terraced house for sale in Rosery Road, TQ2 6AX, TQ2 — £170,000 • 3 bed • 1 bath • 640 ft²


























































































