Comfortable two-bed cottage with garden and garage in peaceful rural hamlet.
Victorian semi-detached with period features
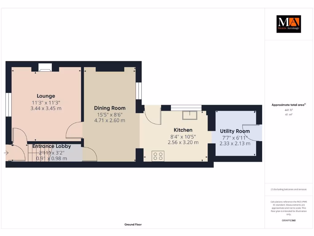
Two bedrooms; single family bathroom
Lounge with cast-iron wood-burning stove
Private garden, patio, and mature shrubs
Garage, carport and private driveway parking
EPC rating E — energy improvements likely needed
Medium flood risk — check insurance/mitigation
Average broadband; council tax Band B
Set in the quiet rural village of Ten Mile Bank, this two-bedroom Victorian semi-detached home offers a comfortable, characterful base with a decent private garden and garage. The lounge features a cast-iron wood-burning stove and flows through to a dining room and kitchen with integral appliances, making daily living straightforward for a small family or couple.
Practical benefits include private off-road parking, a garage and a useful utility room with direct garden access. The property is freehold, council tax band B and sits about seven miles from Downham Market, which provides rail links to King’s Lynn and London via Cambridge.
Buyers should note an EPC rating of E, so energy-efficiency improvements may be needed to reduce running costs. There is a single bathroom and broadband speeds are average; the house sits in a medium flood-risk area, which should be considered for insurance and any future landscaping or extension plans.
This is a well-presented, average-sized home with period character and scope for modest upgrading. It will suit buyers seeking village life with reasonable commuting access, and those who value a private garden and garage without extensive renovation.
3 bedroom semi-detached house for sale in River Bank, Ten Mile Bank, Downham Market, Norfolk, PE38 — £240,000 • 3 bed • 1 bath • 917 ft²
3 bedroom semi-detached house for sale in Station Road, Ten Mile Bank, Downham Market, Norfolk, PE38 — £270,000 • 3 bed • 2 bath • 1389 ft²
3 bedroom semi-detached house for sale in Paynes Lane, Feltwell, IP26 — £250,000 • 3 bed • 1 bath • 861 ft²
4 bedroom semi-detached house for sale in Bexwell Road, Downham Market, PE38 — £437,500 • 4 bed • 2 bath • 2235 ft²
4 bedroom semi-detached house for sale in Church Road, Wimbotsham, King's Lynn, PE34 — £380,000 • 4 bed • 2 bath • 1449 ft²
3 bedroom detached house for sale in Sandy Lane, Denver, Downham Market, PE38 — £585,000 • 3 bed • 2 bath • 1773 ft²














































































