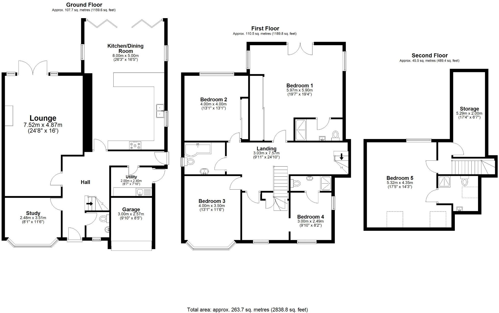
**Standout Features:**
- Immaculate 5-bedroom detached family home
- Situated on a quiet cul-de-sac close to Solihull Town Centre and train station
- Spacious open-plan kitchen/dining area with bifold doors to the garden
- Includes a separate formal living room and study
- Four bathrooms, ideal for family convenience
- Approx. 2838 sq ft of living space with an integrated garage and driveway
**Potential Downsides:**
- Older property might require some modern updates
- Cavity walls are assumed to have no insulation
This stunning five-bedroom detached home offers a blend of elegance and functionality, perfect for families seeking both comfort and convenience. With approximately 2838 sq ft of living space, this residence boasts a welcoming hallway, a formal living room with a modern gas fireplace, and a versatile study that could double as a playroom. The contemporary open-plan kitchen is a chef's dream, featuring an island, integrated appliances, and bifold doors that seamlessly connect to the generous southerly-facing garden—ideal for summer gatherings.
Located within walking distance to Solihull Town Centre and excellent schooling options like Tudor Grange Academy, this property is perfectly positioned for families. The upper levels include four spacious bedrooms and an additional bedroom on the second floor, giving flexibility for teenagers or guests. With its low-crime area and excellent transport links to Birmingham and London, this home is not just a property but a lifestyle choice. Don’t miss out on the chance to secure this exceptional family residence in a highly sought-after location—schedule your viewing today!
4 bedroom detached house for sale in Greyhurst Croft, Solihull, B91 — £650,000 • 4 bed • 2 bath • 1436 ft²
4 bedroom detached house for sale in Kelmarsh Drive, Solihull, B91 — £695,000 • 4 bed • 2 bath • 1372 ft²
5 bedroom detached house for sale in Woodside Way, Solihull, West Midlands, B91 — £1,395,000 • 5 bed • 4 bath • 2900 ft²
5 bedroom detached house for sale in Silhill Hall Road, Solihull, B91 — £900,000 • 5 bed • 2 bath • 2303 ft²
5 bedroom semi-detached house for sale in Ashleigh Road, Solihull, B91 — £949,500 • 5 bed • 4 bath • 2617 ft²
6 bedroom detached house for sale in Sandal Rise, Solihull, B91 — £1,625,000 • 6 bed • 6 bath • 3246 ft²


















































































































