Versatile country-edge living with large garden and flexible annex accommodation.
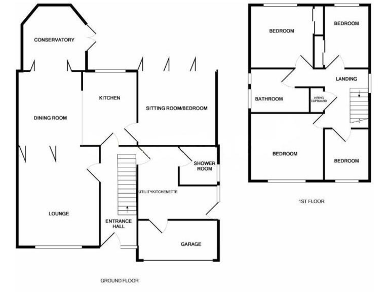
- Four bedrooms plus ground-floor annex/bedroom five with shower room
- Large open-plan kitchen/dining/family space and garden room
- Oak flooring and bi-folding doors to the rear garden
- Double-width driveway and garage store for parking and storage
- Generous lawned gardens backing onto open countryside views
- Village location with Good-rated primary and secondary schools nearby
- Slow broadband speeds locally; consider connectivity options
- Above-average council tax band
Set at the end of a tree-lined cul-de-sac and backing onto open fields, this deceptively spacious four-bedroom detached home offers family living with attractive countryside views. The property is well appointed throughout with high-quality finishes such as oak flooring, large open-plan living spaces and generous glazing that brings the garden firmly into daily life.
The ground floor includes a flexible annex/bedroom five with its own shower room and a large utility/cloak room, ideal for multi-generational living or as a home office. The heart of the house is the open-plan kitchen/dining/family area plus a superb garden room/conservatory and bi-folding doors opening to the rear garden, creating excellent flow for family days and entertaining.
Outside there are large lawned gardens, a double-width driveway and a garage store providing useful parking and storage. The village location is peaceful and affluent, with Good-rated primary and secondary schools within reach and no local flood risk. Mobile signal is excellent for everyday connectivity.
Practical considerations include slower broadband speeds in the area and an above-average council tax band. These factors should be weighed alongside the property’s generous plot, flexible accommodation and well-presented finishes. A viewing is recommended to appreciate the space and setting in full.
4 bedroom detached house for sale in Wrexham Road, Nantwich, CW5 — £475,000 • 4 bed • 2 bath • 1486 ft²
4 bedroom detached house for sale in Beambridge Close, Nantwich, CW5 — £400,000 • 4 bed • 2 bath
4 bedroom detached house for sale in Millers Grove, Wrenbury, Cheshire, CW5 — £465,500 • 4 bed • 3 bath • 1357 ft²
5 bedroom detached house for sale in Glebe Close, Wybunbury, Nantwich, CW5 — £650,000 • 5 bed • 3 bath • 2448 ft²
5 bedroom semi-detached house for sale in London Road, Stapeley, Nantwich, Cheshire, CW5 — £699,995 • 5 bed • 3 bath • 2178 ft²
5 bedroom detached house for sale in Mill Pool Lane, Nantwich, CW5 — £525,000 • 5 bed • 3 bath • 1809 ft²


























































































































































