KT7 0SH - 2 bedroom detached house for sale in The Island, Thames Dit…

View on Property Piper

2 bedroom detached house for sale in The Island, Thames Ditton, KT7

Summary - 11 THE ISLAND THAMES DITTON KT7 0SH

2 bed 1 bath Detached

**Standout Features:**
- Rare opportunity on a private island
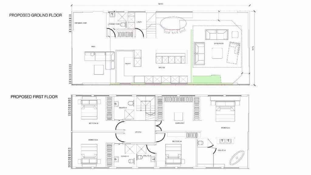
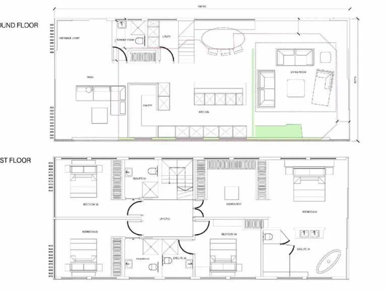
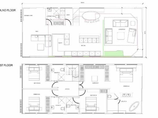
- Planning permission for a new, substantial 2,583 sq ft four-bedroom house
- 31 ft direct mooring on the Main Thames
- Located in the picturesque village of Thames Ditton, with great local amenities
- Freehold tenure

**Notable Concerns:**
- Current property is a 2-bedroom detached house requiring modernization
- Timber frame with no insulation (assumed)
- Electric heating and storage heaters

Escape to your own slice of paradise with this rare property on Thames Ditton Island, featuring stunning river views and direct access to the Thames. This unique 2-bedroom detached house presents an exceptional investment opportunity, boasting approved planning for a spacious new build of 2,583 sq ft with four bedrooms, perfect for those envisioning a family dwelling or lucrative rental potential.

The tranquil island setting promotes an idyllic lifestyle, complete with a beautiful garden sloping toward the water, ideal for outdoor gatherings or peaceful relaxation. Enjoy the charming village life just moments away, with independent shops, pubs, and easy access to a train station, making London just a 35-minute commute.

However, the existing structure does require renovation, offering the potential for personalization according to your dream home vision. With a moderate council tax band and an affluent area classification, this property combines exclusivity with practicality. Don’t miss out on this unique opportunity—properties like this rarely come available!

Property Details

Brochure Descriptions

Image Descriptions

Floorplan Description

Rooms

Textual Property Features

Detected Visual Features

EPC Details

Nearby Schools

Nearest Bars And Restaurants

,,,,}

Nearest General Shops

,,}

Nearest Grocery shops

,,}

Nearest Supermarkets

,,}

Nearest Religious buildings

,,}

Nearest Medical buildings

,,,}

Nearest Airports

,,}

Nearest Leisure Facilities

,,,,}

Nearest Tourist attractions

,,}

Nearest Train stations

,,,,}

Nearest Bus stations and stops

,,,,}

Nearest Hotels

,,}

Tags

Local Market Stats

AirBnB Data

Similar Properties

Meta

High Res Images

Compatible Images

Low res Images

Thumbnails

Raw Images

High Res Floorplan Images

Compatible Floorplan Images

Low res Floorplan Images

FloorplanImages Thumbnail

Raw Floorplan Images