**Standout Features:**
- Sizeable freehold site of 1.8 acres in a coastal, affluent area.
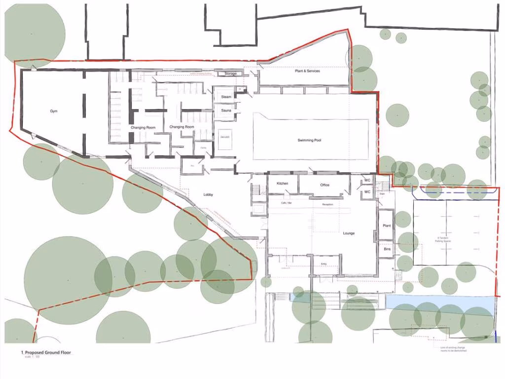
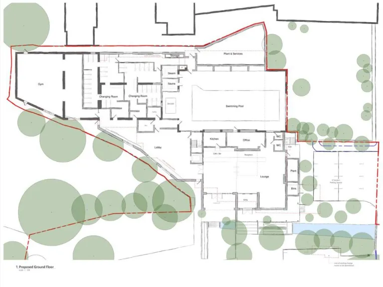
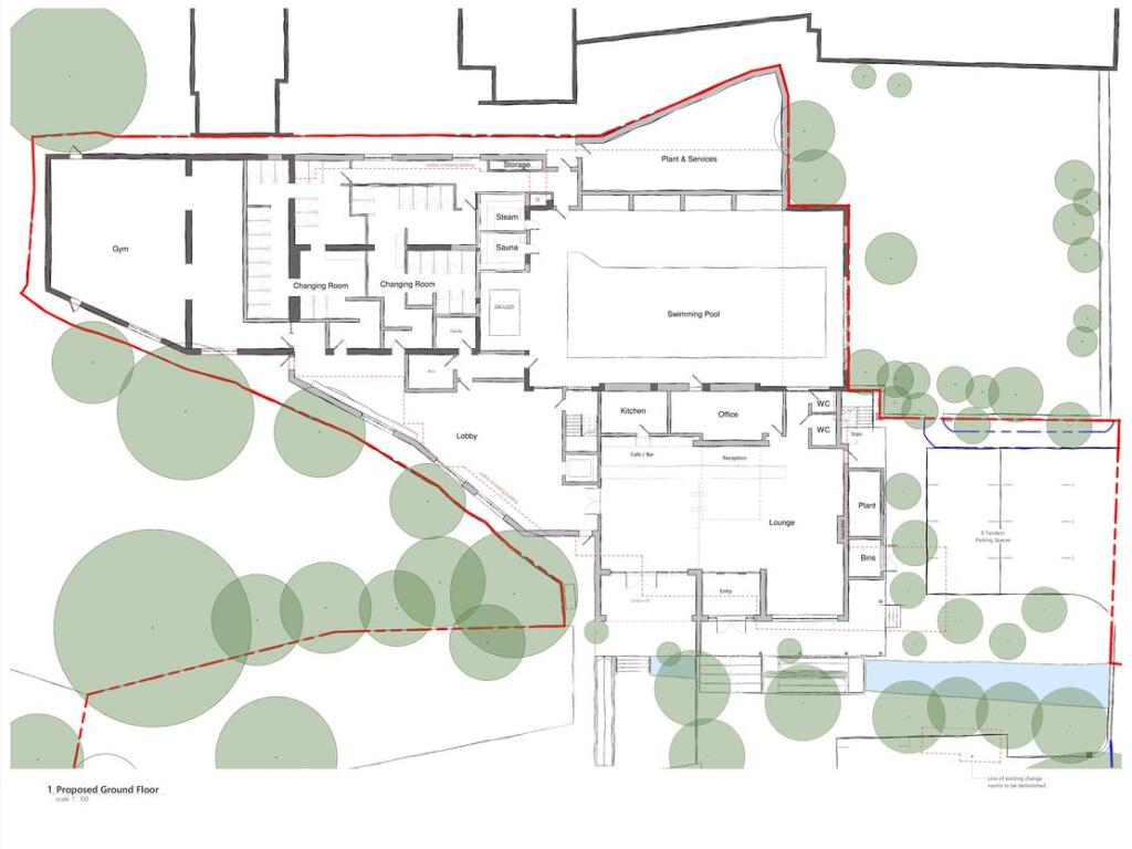
- Planning permission for redevelopment as a country club and restaurant (suitable for community uses STP).
- Existing recreational facilities, including multiple tennis courts.
- Located near Chichester Harbour Area of Outstanding Natural Beauty (AONB).
- Excellent transport links and local amenities within proximity.
**Summary:**
Seize a rare opportunity to acquire a substantial 1.8-acre freehold site in the desirable coastal area of West Wittering, a prime location just south of Chichester. This property comes with approved planning permission (ref: 22/00782/FUL) for the redevelopment of the existing country club, allowing for extensive extensions and reconfiguration. Prospective buyers can envision a luxurious facility featuring indoor and outdoor pools, sauna, gym, and a vibrant restaurant, all while incorporating sustainable design elements amidst the beautiful backdrop of Chichester Harbour AONB.
With multiple tennis courts and ample greenspace, this offering is perfect for investors seeking a lucrative venture in leisure and hospitality or developers looking to enhance community amenities. The site is largely cleared and ready for building, ensuring a streamlined transition towards your envisioned project. While there is an opportunity for customization, be aware that ongoing renovations may require attention. The area boasts low crime, excellent mobile connectivity, and is surrounded by affluent neighborhoods—making it a premium location ripe for investment. Don't miss your chance to capitalize on this unique offering—explore the future possibilities that await on this expansive property!
4 bedroom detached house for sale in Chichester Road, West Wittering, Chichester, PO20 — £1,350,000 • 4 bed • 5 bath • 3381 ft²
3 bedroom detached house for sale in Rookwood Road, West Wittering, Chichester, PO20 — £900,000 • 3 bed • 1 bath • 2402 ft²
Shop for sale in Rookwood Road, West Wittering, Chichester, PO20 — £900,000 • 1 bed • 1 bath • 2402 ft²
Plot for sale in The Piggery Yard, Green Lane, Ham Road, Sidlesham, PO20 — £230,000 • 1 bed • 1 bath • 1883 ft²
Plot for sale in The Piggery Yard, Green Lane, Ham Road, Sidlesham, PO20 — £460,000 • 1 bed • 1 bath • 1883 ft²
Commercial property for sale in Plot Corner Of Stocks Lane And Bracklesham Lane, Bracklesham Bay, East Wittering, West Sussex, PO20 8JA, PO20 — £295,000 • 1 bed • 1 bath • 12200 ft²






































































































































