**Standout Features:**
- Modern two-bedroom apartment in Reading Town Centre
- Stylishly designed with contemporary finishes
- Off-street parking included
- Share of freehold with no service charges or ground rent
- Chain-free sale for expedited process
- Ideal for young families or professionals seeking urban living
**Potential Concerns:**
- Compact size, suitable for singles, couples, or small families
- No garden or outdoor space, limiting private outdoor options
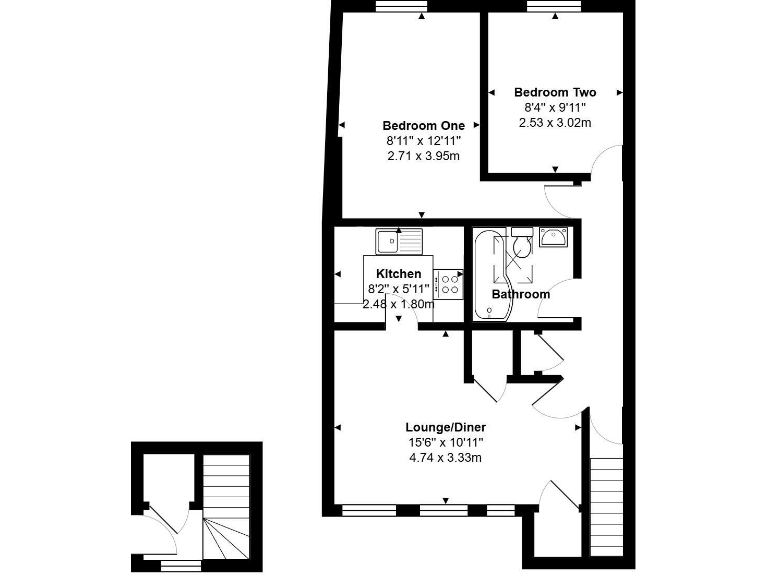
Step into this inviting two-bedroom apartment, perfectly positioned in the vibrant heart of Reading Town Centre, ideal for first-time buyers, young families, or investors. This sleek property features a spacious lounge, brightened by natural light and perfect for entertaining, combined with a modern kitchen boasting contemporary countertops and appliances. Each bedroom offers comforting space for relaxation, complemented by an elegantly designed bathroom with modern fittings.
Enjoy the convenience of off-street parking in this sought-after urban locale, providing easy access to a variety of local amenities, including eateries, shops, and excellent transport links. With a share of the freehold and no service charges, this property is not only an appealing lifestyle choice but a smart investment opportunity in today’s market. Don’t miss your chance to own this charming apartment—opportunities like this in central Reading are rare, so arrange a viewing today!
2 bedroom apartment for sale in 5-9 Berkeley Avenue, Reading, Berkshire, RG1 — £325,000 • 2 bed • 2 bath • 786 ft²
2 bedroom apartment for sale in Station Road, Reading, Berkshire, RG1 — £250,000 • 2 bed • 2 bath • 617 ft²
2 bedroom apartment for sale in Erleigh Road, Reading, Berkshire, RG1 — £285,000 • 2 bed • 2 bath • 751 ft²
2 bedroom apartment for sale in Silver Street, Reading, Berkshire, RG1 — £375,000 • 2 bed • 2 bath • 694 ft²
2 bedroom apartment for sale in Alfred Street, Reading, Berkshire, RG1 — £340,000 • 2 bed • 2 bath • 643 ft²
2 bedroom apartment for sale in Riverside House, Fobney Street, Reading, Berkshire, RG1 — £230,000 • 2 bed • 2 bath • 712 ft²






























