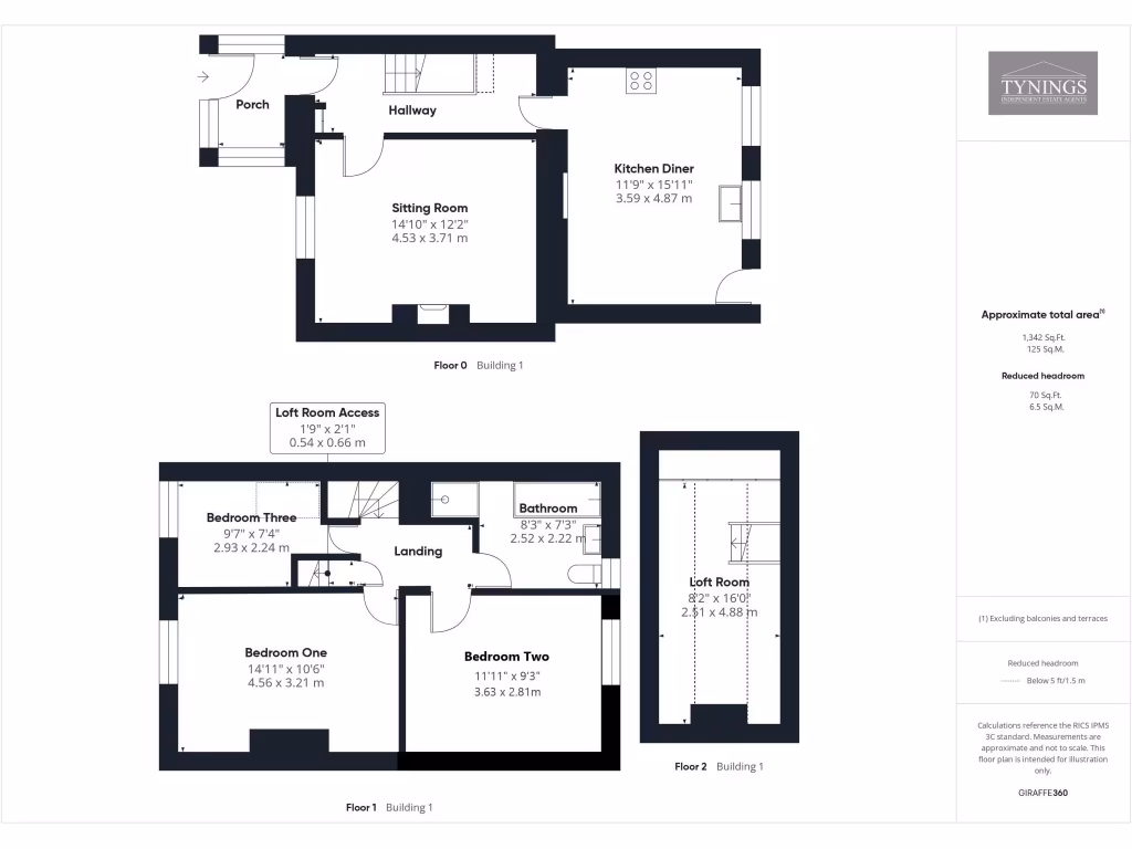
**Standout Features:**
- Charming three-bedroom Victorian mid-terrace cottage
- Retains period features: wooden flooring and Bath stone fireplace
- Spacious private garden with a southerly aspect
- Converted loft room and an external garden studio
- Close to highly-rated schools and local amenities
- Excellent broadband speeds and low crime rate
- Freehold tenure with an affordable council tax
This beautifully presented three-bedroom Victorian cottage offers a blend of period charm and modern convenience in an affluent community. The inviting interior showcases original wooden flooring and a striking Bath stone fireplace, creating a warm and welcoming atmosphere. Complemented by a converted loft room, this home provides ideal versatility for families or professionals.
Step outside to a generous garden featuring a private southerly aspect, complete with a spacious studio—perfect for a home office, workshop, or creative space. Nestled in a family-friendly neighborhood, you’ll be just moments from reputable schools and local amenities, making this location both convenient and appealing.
While the plot size is modest, the property has ample potential for personal touch or renovation. With such unique features and a sought-after location, this cottage is truly a gem—don't miss out on the chance to call it home!
2 bedroom terraced house for sale in Old Fosse Road, Bath, Somerset, BA2 — £325,000 • 2 bed • 1 bath • 784 ft²
3 bedroom semi-detached house for sale in Gladstone Road, Combe Down, Bath, BA2 — £595,000 • 3 bed • 2 bath • 778 ft²
2 bedroom terraced house for sale in Williamstowe, Combe Down, Bath, BA2 — £495,000 • 2 bed • 1 bath • 828 ft²
3 bedroom end of terrace house for sale in Rock Road, Midsomer Norton, Radstock, Somerset, BA3 — £250,000 • 3 bed • 1 bath • 938 ft²
4 bedroom semi-detached house for sale in Tyning Road, Combe Down, Bath, BA2 — £975,000 • 4 bed • 2 bath • 1439 ft²
4 bedroom terraced house for sale in Clevedon Road, Midsomer Norton, Radstock, Somerset, BA3 — £325,000 • 4 bed • 2 bath • 1126 ft²










































































































































