Chain-free three-bed with loft potential near station and shops.
NO ONWARD CHAIN, freehold ownership
Potential loft conversion subject to consents
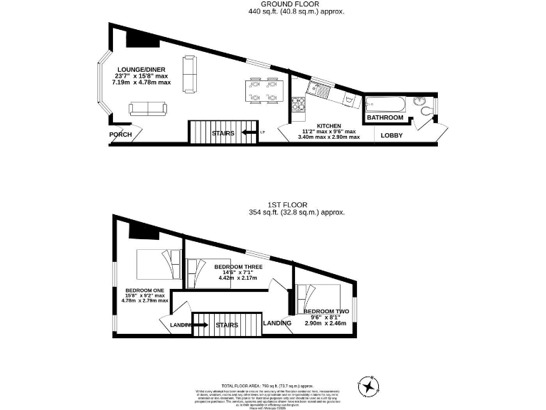
Long 23ft lounge/diner, bay-windowed front room
Small enclosed rear garden and narrow side access
Approx 794 sq ft; rooms generally small to average
EPC Rating C; gas central heating and double glazing
Local area: town centre location with excellent connectivity
Higher-than-average local crime levels — consider security measures
This chain-free, freehold three-bedroom end terrace sits within easy walking distance of the town centre and railway station, ideal for a first-time buyer or investor seeking central rental demand. The house offers a long 23ft lounge/diner, gas central heating, double glazing and an enclosed rear garden — practical basics in a compact footprint.
The property is modest in size (approximately 794 sq ft) and will suit buyers comfortable with smaller rooms and efficient layouts. The house appears structurally sound externally but will benefit from internal updating and cosmetic refurbishment to maximise value. A potential loft conversion could add a fourth bedroom or more living space, subject to planning and building regulations.
Location is a key strength: strong public transport links, fast broadband and excellent mobile signal support commuting and working from home. Local schools rated Good add appeal for buyers with young families or for buy-to-let tenants.
Buyers should note material considerations: the plot and garden are small, local crime levels are higher than average, and the property has only one bathroom. These factors affect suitability for purchasers seeking larger outdoor space or multiple bathrooms. Viewings are recommended to assess room sizes and reconfiguration potential in person.
3 bedroom terraced house for sale in William Street, Swindon, SN1 — £240,000 • 3 bed • 1 bath • 905 ft²
3 bedroom terraced house for sale in Haydon Street, Swindon, SN1 — £200,000 • 3 bed • 1 bath • 1002 ft²
2 bedroom terraced house for sale in Dixon Street, Swindon, Wiltshire, SN1 — £220,000 • 2 bed • 1 bath • 793 ft²
2 bedroom terraced house for sale in Elmina Road, Swindon, Wiltshire, SN1 — £175,000 • 2 bed • 1 bath • 759 ft²
2 bedroom terraced house for sale in Ponting Street, Town Centre, Swindon, Wiltshire, SN1 — £225,000 • 2 bed • 1 bath • 724 ft²
3 bedroom terraced house for sale in Maxwell Street, Swindon, SN1 — £250,000 • 3 bed • 1 bath • 988 ft²






















































