**Standout Features:**
- Individually designed self-build home completed in 2018
- Spacious open-plan living area with panoramic countryside views
- Three double bedrooms with walk-in wardrobes (potential for a fourth bedroom)
- Luxury Garden Lodge featuring a bar, gym, and W/C facilities
- Eco-friendly, fully electric with modern heating solutions
- Beautifully landscaped gardens with secure parking and detached garage/workshop
**Potential Downsides:**
- Located in an area classified as high crime and very deprived
- Above-average council tax band
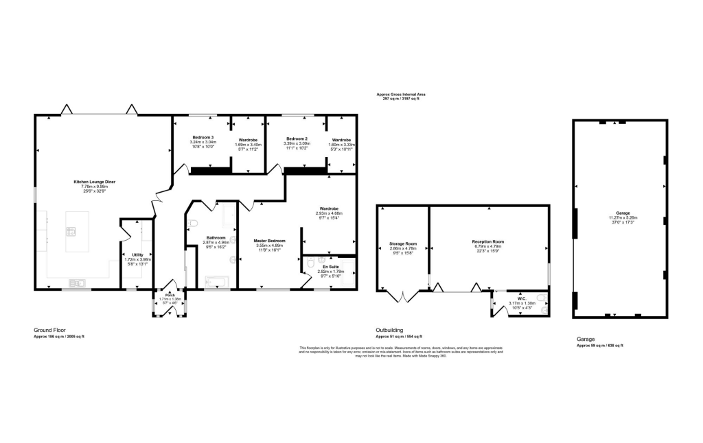
Welcome to your dream home – an exceptional, individually designed detached bungalow set in a picturesque rural location. With a sprawling total floor area of 2,604 sq ft, this property offers luxurious living with an eco-friendly edge. Step inside to discover three spacious double bedrooms, each paired with a walk-in wardrobe, plus a stylish family bathroom and en-suite that create a serene retreat. The heart of the home is an expansive open-plan reception area that seamlessly connects with beautifully landscaped gardens through striking bi-fold doors, perfect for entertaining or enjoying peaceful country views.
Enhancing this unique property is a remarkable Garden Lodge Bar and Gym, providing an inviting space for leisure and relaxation. Easily adaptable into a self-contained annex, it’s perfect for hosting guests or creating additional living space for family. Outside, the expansive grounds feature secure parking for multiple vehicles, including designated space for a motorhome, along with a generous garage/workshop for versatile use.
While the location reflects some community challenges, this home stands as a serene oasis with unmatched potential. Don’t miss your chance to own a bespoke masterpiece – schedule your viewing today and experience the comfort and luxury that awaits!































































































































































































































