Private first-floor suite with generous rear garden and garage.
Three bedrooms with principal ensuite on first floor
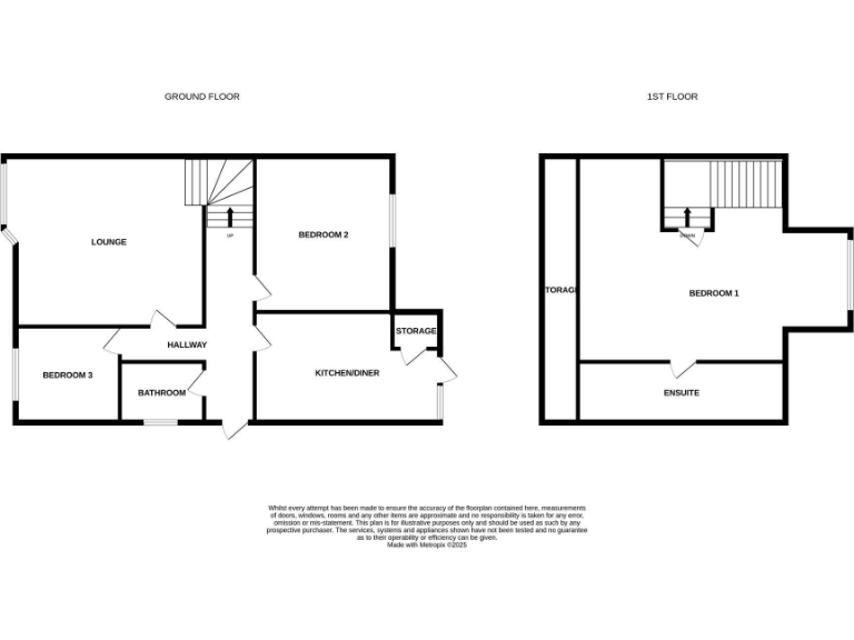
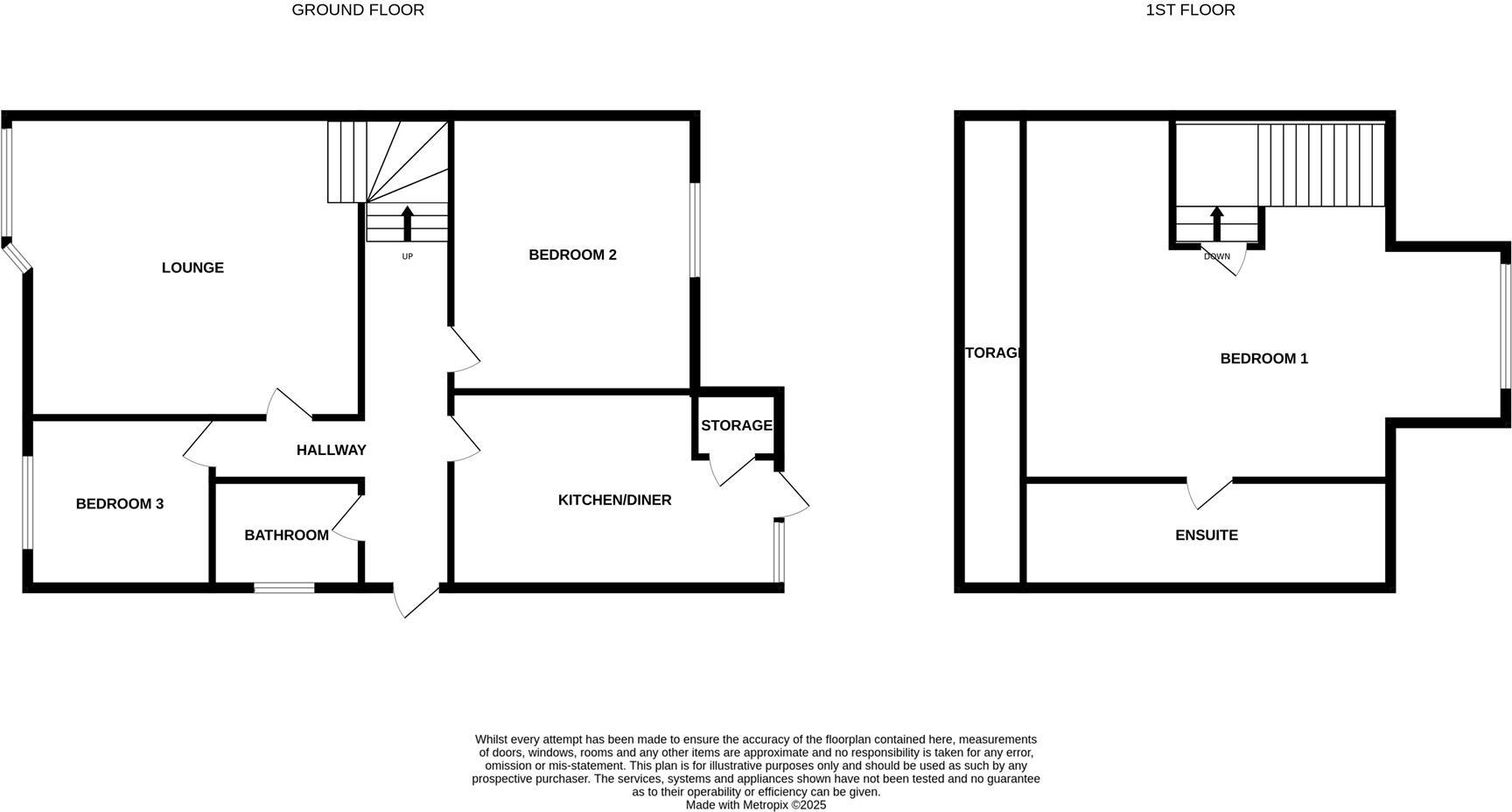
Ready-to-move-in and arranged for flexible living, this three-bedroom semi-detached dormer bungalow combines practical family layout with period character. The principal bedroom sits on the first floor with an ensuite and dormer overlooking the large rear garden, giving a private parents’ retreat while two ground-floor bedrooms keep everyday life compact and convenient. The living room’s exposed brick and multi-fuel burner create a cosy focal point for colder months.
Practical features include an integrated kitchen with appliances, modern bathroom wall panels for easy maintenance, off-road parking for several vehicles and a detached single garage. The large decked area, two wooden sheds and decent plot size offer strong outdoor potential for family entertaining or storage.
Buyers should note the property’s overall internal size is modest (approx. 560 sq ft) and two ground-floor bedrooms are comparatively small, which may limit larger families needing more generous bedroom space. The home was built between 1930–1949 and has double glazing of unknown installation date; no known flood risk. The local area is described as industrious with an ‘endeavouring social renters’ classification, so purchasers should consider neighbourhood context alongside the property’s clear practical strengths.
Offered freehold and competitively priced, this bungalow suits buyers seeking low-maintenance, ready-to-live accommodation with parking, outdoor space and a private first-floor bedroom — ideal for growing families or downsizers wanting some upstairs separation.
3 bedroom semi-detached house for sale in Featherstone Lane, North Featherstone, WF7 — £230,000 • 3 bed • 1 bath • 755 ft²
3 bedroom semi-detached house for sale in Colliers Road, Featherstone, Pontefract, WF7 — £230,000 • 3 bed • 2 bath • 784 ft²
3 bedroom semi-detached house for sale in Silkstone Road, Featherstone, WF7 — £220,000 • 3 bed • 2 bath • 806 ft²
3 bedroom semi-detached house for sale in Kingsway, Pontefract, WF8 — £180,000 • 3 bed • 1 bath • 727 ft²
3 bedroom semi-detached house for sale in Colliers Road, Featherstone, WF7 — £220,000 • 3 bed • 2 bath • 831 ft²
3 bedroom semi-detached house for sale in Katrina Grove, Featherstone, WF7 — £170,000 • 3 bed • 1 bath • 793 ft²














































































