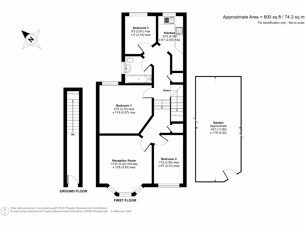
**Standout Features:**
- Three spacious bedrooms
- Private rear garden
- Long lease for added security
- Recently re-fitted bathroom
- Modern kitchen and ample storage
- Convenient first-floor access
- Close proximity to Sydenham station and local parks
This charming three-bedroom, first-floor maisonette offers a perfect blend of modern living and convenience. With a generous 689 square feet, it features a light-filled, 13' lounge with a bay window, a sleek re-fitted bathroom, and ample storage throughout. The property boasts a private rear garden, ideal for outdoor relaxation and entertaining. Located just moments from Sydenham station and vibrant high street amenities, you'll also appreciate the easy access to Mayow Park, Wells Park, and Crystal Palace Park, enhancing your outdoor lifestyle.
While the property is in good condition, it was constructed in the early 1900s, meaning potential cosmetic updates may be considered for personal taste or energy efficiency improvements. The solid brick structure is a classic representation of its era, but be mindful that there is no insulation, and the glazing type is double glazed with an unknown installation date. A long lease and affordable council tax make this property an attractive option for families and first-time buyers alike. Don't miss out on this exceptional opportunity to call this maisonette home—properties in this desirable location are sure to be in high demand!
2 bedroom maisonette for sale in Kirkdale, Sydenham, London, SE26 — £310,000 • 2 bed • 1 bath • 786 ft²
2 bedroom maisonette for sale in Kirkdale, Sydenham, London, SE26 — £435,000 • 2 bed • 1 bath • 775 ft²
3 bedroom ground floor flat for sale in Lawrie Park Road, Sydenham, London, SE26 — £650,000 • 3 bed • 1 bath • 982 ft²
2 bedroom maisonette for sale in Trewsbury Road, London, SE26 — £500,000 • 2 bed • 1 bath • 1016 ft²
1 bedroom flat for sale in Lawrie Park Road, Sydenham, London, SE26 — £325,000 • 1 bed • 1 bath • 667 ft²
2 bedroom maisonette for sale in Markwell Close, Sydenham, London, SE26 — £325,000 • 2 bed • 1 bath • 775 ft²


























































































