Characterful town cottage with large garden and outbuilding ideal for holiday lets.
Two bedrooms in a traditional terraced cottage layout
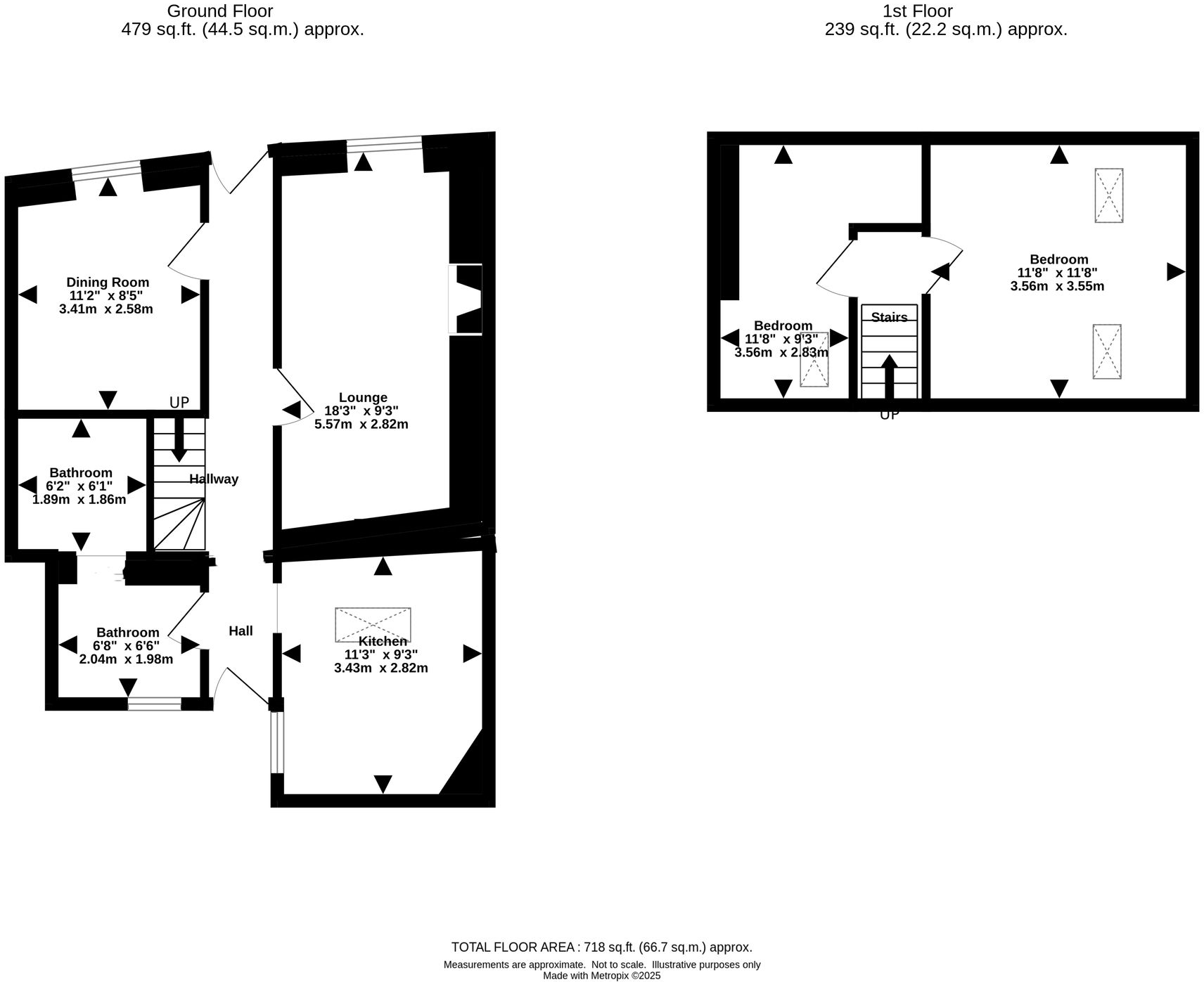
A compact traditional terraced cottage in Whithorn, this two-bedroom freehold offers obvious holiday-let or buy-to-let potential while remaining practical for owner-occupiers. The house benefits from a recently refurbished modern kitchen, a cosy living room with a feature wood-burning stove, and a generous enclosed rear garden with a sizeable outbuilding — useful for storage, workshop use or conversion (subject to consents).
The property sits in a convenient town-centre position with excellent mobile signal and average broadband speeds, making short-term lets and remote-working stays viable. The generous garden and greenhouse are standout assets for outdoor guests or gardeners and increase the appeal compared with similar terraced cottages.
Buyers should note material negatives plainly: the EPC is G, so heating and running costs will be high and will impact lettings and resale unless energy improvements are made. The building footprint is small, ceiling heights are generally low, and the immediate area is classified as very deprived — factors that can affect long-term demand and rental income. Although externally reasonable, some internal upgrading beyond the new kitchen may still be required.
Overall, this is a characterful, low-maintenance town cottage with clear investment upside if energy-efficiency works are carried out and the outbuilding or garden is leveraged for additional income or amenity. It will suit investors targeting holiday lets or first-time buyers seeking an affordable entry into coastal-town living who are comfortable managing energy and space limitations.
2 bedroom terraced house for sale in George Street, Whithorn, DG8 — £180,000 • 2 bed • 1 bath • 1389 ft²
3 bedroom terraced house for sale in Main Street, Port William, DG8 — £85,000 • 3 bed • 1 bath • 972 ft²
3 bedroom cottage for sale in Main Street, Whauphill, DG8 — £140,000 • 3 bed • 1 bath • 904 ft²
3 bedroom end of terrace house for sale in Main Street, Isle Of Whithorn, DG8 — £200,000 • 3 bed • 1 bath • 999 ft²
3 bedroom cottage for sale in Whauphill, Newton Stewart, DG8 — £135,000 • 3 bed • 1 bath • 797 ft²
4 bedroom end of terrace house for sale in George Street, Whithorn, DG8 — £190,000 • 4 bed • 4 bath • 1696 ft²


































































