**Standout Features:**
- No onward chain
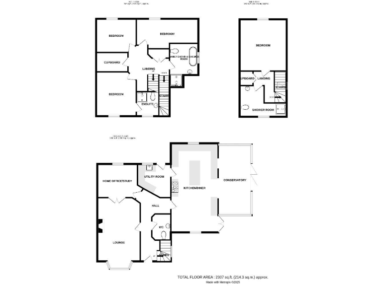
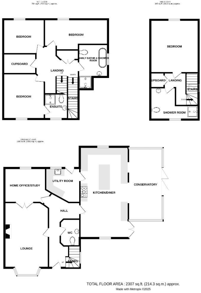
- Expansive semi-detached family home with 2,307 sq. ft.
- Picturesque countryside views backing onto farmland
- Large kitchen/dining area and conservatory
- Double garage with potential office/annex above
- Driveway parking for multiple vehicles
- Generous wrap-around garden with patio areas for entertaining
- En-suite and two additional bathrooms
- Potential for future extensions (STP)
This spacious four-bedroom semi-detached home in Church End, Shalford, Braintree, offers both charm and functionality with its attractive countryside setting and generous living space. The large kitchen and dining area is perfect for family gatherings, while the sunlit conservatory extends the living space and invites in the serenity of the surrounding farmland. Each of the four bedrooms is well-sized, and the master boasts en-suite facilities, ensuring comfort for the whole family.
The property is ideal for families seeking space and outdoor enjoyment, with a large wrap-around garden that includes multiple patios for entertaining. A significant highlight is the double garage, featuring an office or potential annex above, providing flexibility for remote work or guest accommodations. With no onward chain, this property is not just a family home but also an excellent investment opportunity, given its low crime rate and proximity to quality schooling options. Explore the potential for expansion or renovation; this remarkable home is waiting for your personal touch! Don't miss out on this exclusive opportunity.
3 bedroom semi-detached house for sale in Barryfields, Shalford, CM7 — £385,000 • 3 bed • 2 bath
5 bedroom detached house for sale in The Street, Shalford, Braintree, CM7 — £650,000 • 5 bed • 3 bath • 1526 ft²
3 bedroom bungalow for sale in Row Green, Bakers Lane, CM77 — £450,000 • 3 bed • 1 bath • 1300 ft²
4 bedroom chalet for sale in Blackmore End, Braintree, Essex, CM7 — £700,000 • 4 bed • 1 bath • 2143 ft²
3 bedroom detached house for sale in Kynaston Road, Panfield, Braintree, CM7 — £415,000 • 3 bed • 2 bath • 1054 ft²
3 bedroom detached house for sale in Shalford Green, Shalford, Braintree, CM7 — £585,000 • 3 bed • 2 bath • 837 ft²










































































































