OL2 6UA - 4 bed victorian detached family home in Dogford Road, OL2 6…

View on Property Piper

4 bedroom detached house for sale in Dogford Road, Royton, OL2

Summary - 15 DOGFORD ROAD ROYTON OLDHAM OL2 6UA

4 bed 2 bath Detached

Spacious 1914 detached home with gardens, garage and abundant period character..
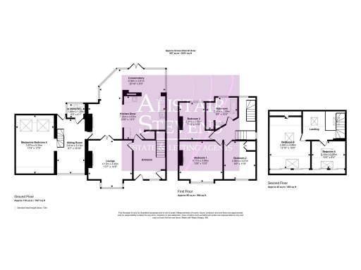
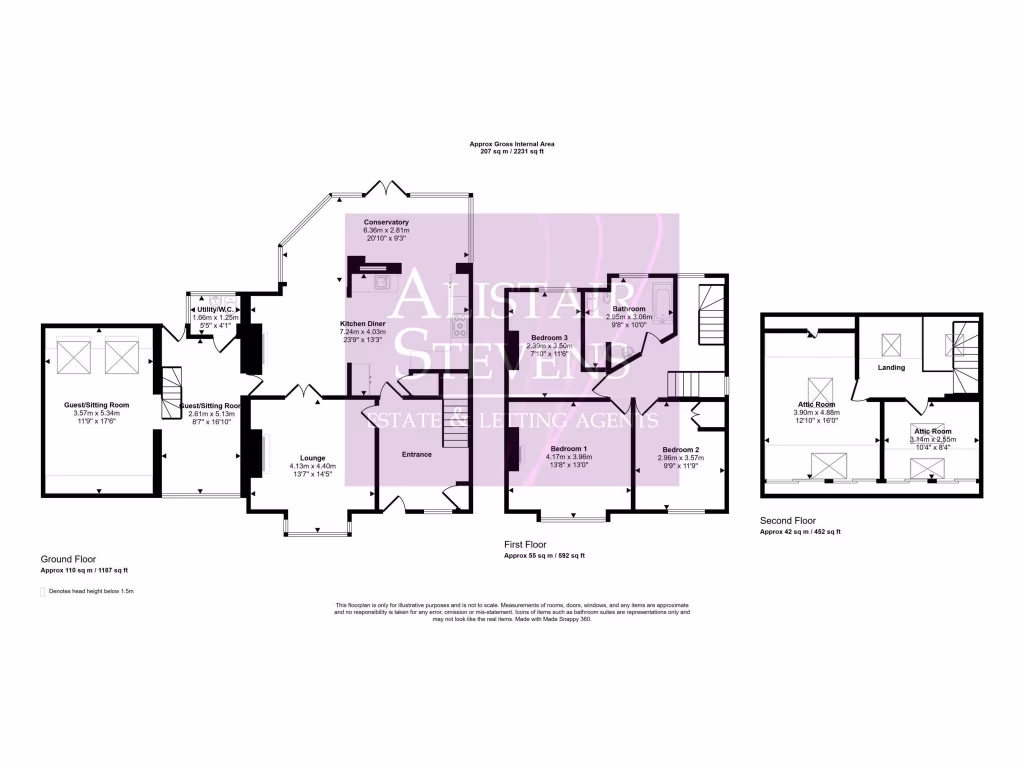
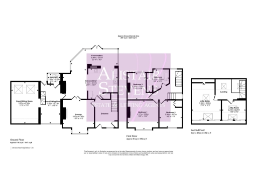
Four double bedrooms plus two attic rooms and mezzanine over garage
A rare, extended 1914 detached period home on Dogford Road, offering generous family accommodation across three levels and retaining many original features. The ground floor presents a wide entrance hall, lounge with bay and feature fireplace, a large open-plan kitchen/diner with granite worktops and a conservatory that opens onto substantial gardens — ideal for family living and entertaining.

Upstairs there are three double bedrooms and a four-piece family bathroom; two further attic bedrooms sit on the second floor providing useful guest or study space. The property also benefits from a mezzanine room above the garage, a utility/WC, driveway parking and an integral garage with electric door and power. Gas central heating and double glazing are already installed.

This is a genuine period property with character — stained glass, original wood panelling and high ceilings — but it does require typical older-home attention. The cavity walls are listed as built without insulation (assumed), and some ongoing maintenance should be expected given the age. Council tax is above average and the home is leasehold (long lease remaining: 888 years).

Located in a comfortable suburban pocket of Royton with very low local crime, fast broadband and excellent mobile signal, the house is well placed for good local schools, bus links and quick access to the motorway network. For a buyer seeking a spacious family home with period charm and future improvement potential, this is a standout opportunity.

Property Details

Image Descriptions

Floorplan Description

Rooms

Textual Property Features

Target Audience

AI Tags

Detected Visual Features

EPC Details

Nearby Schools

Nearest Bars And Restaurants

,,,,}

Nearest General Shops

,,}

Nearest Grocery shops

,,}

Nearest Supermarkets

,,}

Nearest Religious buildings

,,}

Nearest Medical buildings

,,,}

Nearest Airports

}

Nearest Leisure Facilities

,,,,}

Nearest Tourist attractions

,,}

Nearest Train stations

,,,,}

Nearest Bus stations and stops

,,,,}

Nearest Hotels

,,}

Tags

Local Market Stats

Similar Properties

Meta

High Res Images

Compatible Images

Low res Images

Thumbnails

Raw Images

High Res Floorplan Images

Compatible Floorplan Images

Low res Floorplan Images

FloorplanImages Thumbnail

Raw Floorplan Images