Compact, well-presented flat with allocated parking and low service charge.
Chain-free one-bedroom apartment with long 991-year lease
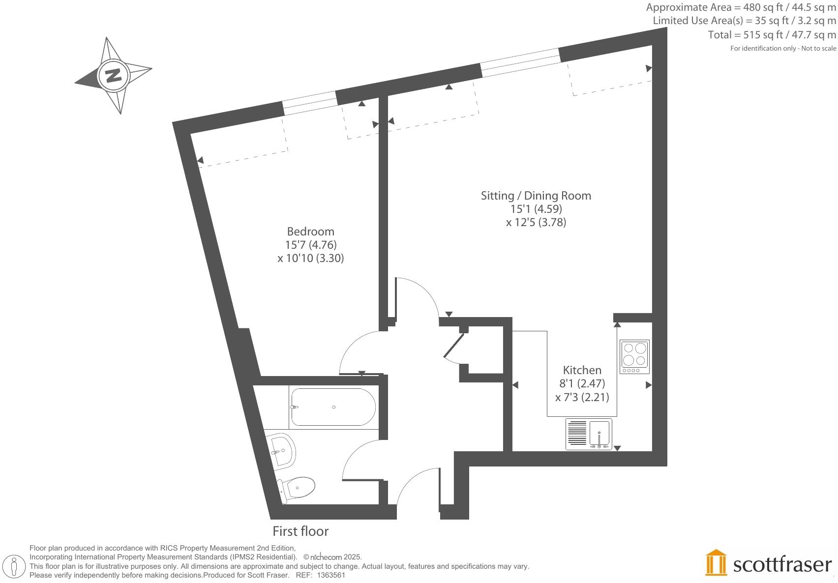
A compact, well-presented one-bedroom apartment in the heart of Witney, offered chain-free and with a very long lease. The open-plan living area benefits from a fitted kitchen with integrated appliances and good natural light from a skylight, making the layout easy to live in for a single occupant or couple. Allocated off-street parking in the shared courtyard is a useful town-centre convenience.
Practical running notes: heating is electric via room heaters rather than gas central heating, which can mean higher energy costs compared with gas-heated homes. There is a modest annual service charge of around £600 and no ground rent. The building is modern in character (post-2012 construction/modern conversion) with double glazing and likely insulated timber-frame construction.
Location is a clear selling point — central Witney with fast broadband, excellent mobile signal and easy access to shops, buses and local schools. However, local recorded crime levels are high, which should be considered by prospective buyers and investors when weighing desirability and rental prospects.
Overall, the apartment suits a first-time buyer or buy-to-let investor seeking a low-maintenance town-centre base with long lease security and parking. The compact footprint and electric heating make it best for single occupancy or a couple rather than a family needing larger space.
1 bedroom flat for sale in Witney, Oxfordshire, OX28 — £230,000 • 1 bed • 1 bath • 473 ft²
1 bedroom apartment for sale in 18 Langdale Gate, Witney, Oxfordshire, OX28 — £160,000 • 1 bed • 1 bath • 377 ft²
2 bedroom apartment for sale in New Bridge Street, Witney, Oxfordshire, OX28 — £210,000 • 2 bed • 1 bath • 637 ft²
2 bedroom apartment for sale in 43 Woodford Way, Witney, Oxfordshire, OX28 — £210,000 • 2 bed • 1 bath • 592 ft²
2 bedroom apartment for sale in New Bridge Street, Witney, Oxfordshire, OX28 — £215,000 • 2 bed • 2 bath • 724 ft²
1 bedroom flat for sale in Witney, Oxfordshire, OX28 — £150,000 • 1 bed • 1 bath • 409 ft²






























































