High‑yield town centre unit ideal for an investor or small operator.
- Approx 430 sq ft open-plan retail space, lower-level access
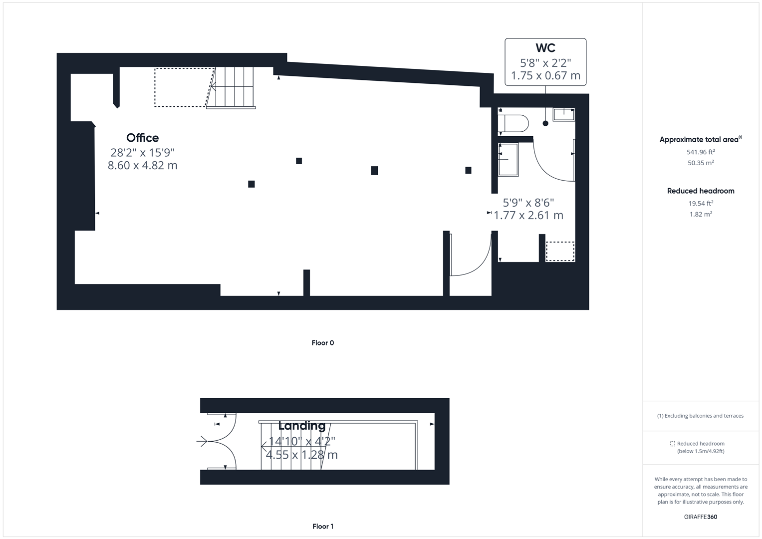
A compact, town‑centre commercial unit arranged as a versatile lower‑level open space with direct Fore Street access. The premises extend to about 430 sq ft with an adjoining store, W/C and access to a shared garden — suitable for boutique retail, studio or income let. Vacant possession supports immediate occupation or letting.
This property is promoted as an investment opportunity with an advertised high return estimate of approximately 16% (buyer should verify figures). Practical benefits include a long lease (999 years from 1998), low nominal ground rent and an EPC rating of C. The retail frontage and central Kingsbridge location deliver strong footfall and good local amenities.
Important constraints: the building is Grade II listed which will restrict alterations and can complicate consenting and repairs. The site is in a high flood‑risk area; flood resilience and insurance costs must be factored into refurbishment or trading plans. Heating is by electric storage heaters and the granite walls likely lack insulation, so energy costs and upgrade needs should be budgeted.
Shared maintenance costs apply (25% building / 12.5% garden) and the unit is small, so trading space and storage are limited. These factors reduce refurbishment freedom but keep running costs predictable for an investor or small operator.
High street retail property for sale in 50-52 Fore Street, Kingsbridge, Devon, TQ7 — £295,000 • 1 bed • 1 bath • 3806 ft²
High street retail property for sale in 87 Fore Street, Kingsbridge, Devon, TQ7 — £105,000 • 1 bed • 1 bath • 431 ft²
2 bedroom mixed use property for sale in Fore Street, Kingsbridge, TQ7 — £260,000 • 2 bed • 1 bath • 1451 ft²
Cafe for sale in 61 Fore Street, Kingsbridge, Devon, TQ7 — £95,000 • 1 bed • 1 bath • 632 ft²
High street retail property for sale in Unit 1 & 2 The Anchor Centre, Bridge Street, Kingsbridge, Devon, TQ7 — £230,000 • 1 bed • 1 bath • 3168 ft²
High street retail property for sale in 60 Fore Street, Salcombe, Devon, TQ8 — £750,000 • 1 bed • 1 bath • 1500 ft²






























