**Standout Features:**
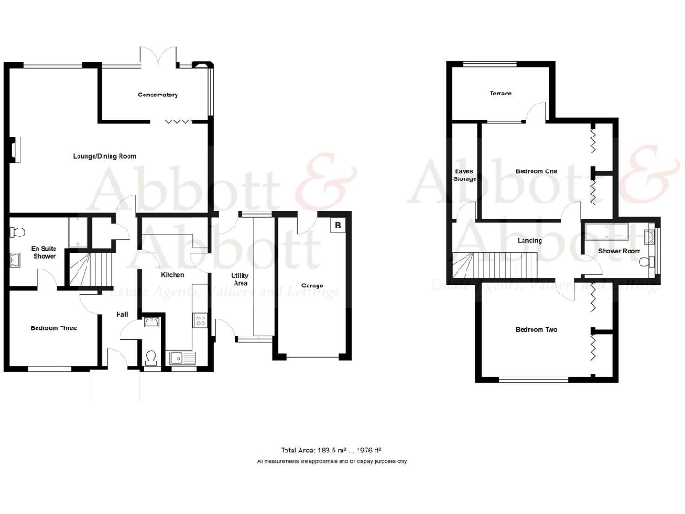
- ***Three spacious bedrooms,*** with one featuring an en suite and another with a private terrace offering stunning country views.
- ***Impressive 26'3" x 18'7" lounge/dining room*** ideal for entertaining, leading to a conservatory.
- ***Modern kitchen*** complemented by a large utility room for extra storage and functionality.
- ***Private garden*** with picturesque views of a paddock and a peaceful wooded backdrop.
- ***Convenient location,*** just half a mile from Little Common shops and services, with easy access to public transportation.
**Potential Downsides:**
- Constructed in the 1970s, the home may benefit from cosmetic updates to suit modern tastes.
- Internet speeds in the area are reported as slow, which may affect connectivity for some buyers.
---
This exceptional three-bedroom detached bungalow in Eastergate, Bexhill-on-Sea, combines spacious living with tranquil rural charm. Featuring an expansive lounge/dining room and a modern kitchen alongside a large utility area, it caters well to families or those seeking comfortable retirement living. The master bedroom boasts an en suite, while another bedroom opens onto a private terrace—perfect for savoring country views. Outside, the private rear garden is a serene sanctuary, lending direct views over a paddock.
Set back in a peaceful cul-de-sac yet within easy reach of local shops and amenities, this property presents a unique opportunity for both families and investors. With strong rental potential and proximity to highly rated schools, this bungalow offers a wonderful lifestyle choice in a low-crime, affluent area. Don’t miss your chance to experience the comfort and tranquility this property affords—schedule a viewing today!
3 bedroom detached bungalow for sale in Crofton Park Avenue, Bexhill-On-Sea, TN39 — £450,000 • 3 bed • 1 bath • 1183 ft²
3 bedroom detached bungalow for sale in St. Francis Chase, Bexhill-On-Sea, TN39 — £385,000 • 3 bed • 1 bath • 1085 ft²
3 bedroom detached bungalow for sale in Thorne Crescent, Bexhill-On-Sea, TN39 — £485,000 • 3 bed • 2 bath • 1415 ft²
3 bedroom detached bungalow for sale in Thorne Crescent, Bexhill-on-Sea, TN39 — £575,000 • 3 bed • 2 bath
2 bedroom bungalow for sale in Bicton Gardens, Bexhill-on-Sea, TN39 — £515,000 • 2 bed • 2 bath • 1196 ft²
2 bedroom detached bungalow for sale in Willow Drive, Bexhill-on-Sea, TN39 — £425,000 • 2 bed • 2 bath • 2030 ft²


































































































