Large four-bedroom country house with garage, private solar and generous gardens.
Four double bedrooms, master with en-suite
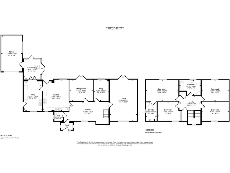
This substantial detached house in Portfield Gate is laid out for family life, with four double bedrooms, two reception rooms, a study and an integral garage. Ground-floor living includes a living room with feature fireplace, a dining room, a sun room and practical utility space — useful for growing families and home working. The rear lawned garden backs onto a paddock, offering a private, rural outlook and room for children or pets to play.
Practical strengths include privately owned solar panels (reducing electricity costs), double glazing and an EPC rating of C. The property was constructed in the early 1990s and offers generous room sizes across approximately 2,332 sqft, with ample driveway parking for several cars. The coast and Pembrokeshire attractions are within easy driving distance, while Haverfordwest’s shops, services and rail station are about 2.5 miles away.
Notable drawbacks are factual and important: the home is heated by an oil-fired boiler (fuel cost variability) and council tax is described as quite expensive. The local area is classified as having very high area deprivation despite very low crime; buyers should consider local services and infrastructure as part of their decision. Services and appliances have not been tested and should be checked at survey.
Overall, The Briary suits families seeking roomy, well-presented accommodation in a quiet, rural setting with good outdoor space and solar panels. It will particularly appeal to buyers prioritising space, privacy and countryside views; purchasers should budget for running costs associated with oil heating and council tax, and arrange a full survey to confirm condition.
4 bedroom detached house for sale in Haverfordwest, SA62 — £350,000 • 4 bed • 2 bath • 1598 ft²
6 bedroom detached house for sale in Portfield Gate, Haverfordwest, Pembrokeshire, SA62 — £450,000 • 6 bed • 3 bath • 3623 ft²
4 bedroom detached house for sale in Brooklands Park, Haverfordwest, Pembrokeshire, SA61 — £520,000 • 4 bed • 2 bath
4 bedroom detached house for sale in Hasguard, Haverfordwest, Pembrokeshire, SA62 — £475,000 • 4 bed • 2 bath • 1647 ft²
3 bedroom detached bungalow for sale in Portfield Gate, Haverfordwest, SA62 — £350,000 • 3 bed • 2 bath • 1453 ft²
4 bedroom detached house for sale in 9 Maes Yr Afon, Goodwick, SA64 — £520,000 • 4 bed • 4 bath • 2433 ft²














































































































