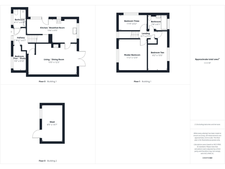
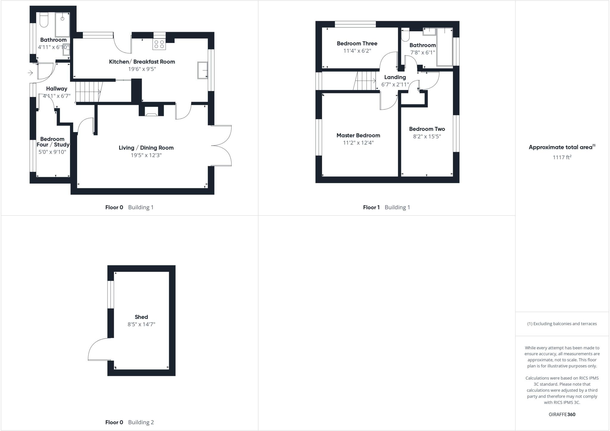
**Standout Features:**
- Extended four-bedroom semi-detached home
- Spacious living room with access to south-east facing garden
- Modern kitchen with white cabinets and logical layout
- Downstairs shower room for added convenience
- Driveway parking space for multiple vehicles
- Close proximity to local shops, schools, and Maidenhead Station
- Low crime rate and affluent neighborhood
**Concise Summary:**
Discover this charming four-bedroom semi-detached home in the sought-after SL6 7SD area, perfect for families or investors. The property boasts a smartly designed extension that includes a spacious living room flowing into a generous south-east facing garden, creating an ideal blend of indoor and outdoor living spaces for relaxation and entertaining. The modern kitchen features bright white cabinets and offers ample workspace, complemented by a convenient downstairs shower room.
Upstairs, find three well-sized double bedrooms and a family bathroom, providing flexible living options for a growing family. Enjoy the security of driveway parking and the ease of access to excellent local amenities, including well-regarded schools and Maidenhead station with fast links to London. While the house is in good condition, potential buyers should note the absence of wall insulation, which offers an opportunity for future energy efficiency upgrades. With its appealing layout and prime location, this property is ready to welcome its new owners! Don’t miss out on the chance to make this your family home.
4 bedroom semi-detached house for sale in Alexandra Road, Maidenhead, SL6 — £700,000 • 4 bed • 2 bath • 1395 ft²
4 bedroom detached house for sale in Milverton Close, Maidenhead, SL6 — £795,000 • 4 bed • 2 bath • 1637 ft²
4 bedroom semi-detached house for sale in Highfield Road, Maidenhead, SL6 5DF, SL6 — £700,000 • 4 bed • 2 bath • 1435 ft²
3 bedroom end of terrace house for sale in Queensway, Maidenhead, Berkshire, SL6 — £450,000 • 3 bed • 1 bath • 892 ft²
4 bedroom semi-detached house for sale in Hampden Road, Maidenhead, Berkshire, SL6 — £525,000 • 4 bed • 2 bath • 1336 ft²
4 bedroom semi-detached house for sale in Havelock Crescent, Maidenhead, SL6 — £850,000 • 4 bed • 2 bath • 1722 ft²










































