Tidy two-bed period cottage, modern kitchen, walking distance to station and schools..
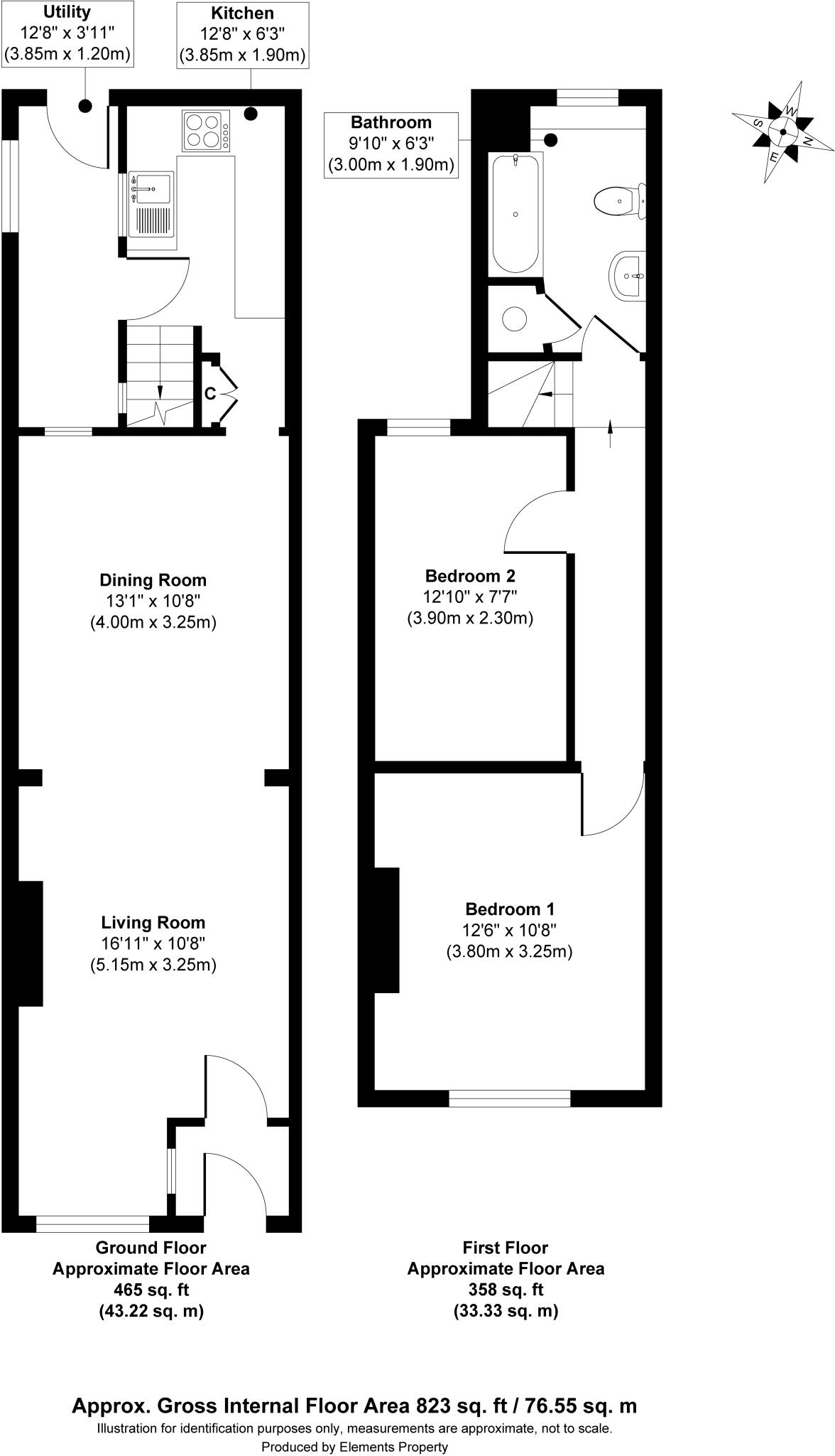
Two double bedrooms in a compact end-terrace cottage
Open-plan lounge/dining room with period character features
Modern fitted kitchen with integrated appliances
Upstairs bathroom; single bathroom for two bedrooms
Small rear garden; low-maintenance outdoor space
Solid brick walls; assumed no cavity insulation (energy upgrade needed)
Walking distance to station and local shops; excellent commuter links
Freehold, vacant possession and no onward chain
This characterful two-bedroom end-of-terrace cottage in North Camp offers an appealing blend of period charm and practical updates. The property benefits from a modern fitted kitchen, double glazing, gas central heating and a compact, easy-to-manage rear garden — ideal for first-time buyers or small families seeking a low-maintenance home.
The layout includes an open-plan lounge/dining room, two double bedrooms and an upstairs bathroom across approximately 823 sq ft. Its location is a strong asset: walking distance to the station, close to good and outstanding primary schools, local shops and regular bus links, making daily life straightforward and commuter routes convenient.
Notable drawbacks are factual and straightforward: the house sits on a small plot, walls are solid brick with assumed no cavity insulation, and there is a single bathroom. While the kitchen has been modernised, other areas retain period finishes and may benefit from cosmetic updating or improved insulation to increase energy efficiency and long-term comfort.
Offered with vacant possession and no onward chain, this freehold cottage suits buyers wanting immediate occupation or straightforward investment potential in a popular Farnborough neighbourhood. The property represents sensible value for those who prioritise location, character and commuting convenience over a large garden or fully remodelled interior.
2 bedroom terraced house for sale in Pinehurst Avenue, Farnborough, Hampshire, GU14 — £337,500 • 2 bed • 1 bath • 573 ft²
2 bedroom end of terrace house for sale in Cross Street, FARNBOROUGH, GU14 — £400,000 • 2 bed • 1 bath • 985 ft²
2 bedroom semi-detached house for sale in Tower Hill, Farnborough, GU14 — £365,000 • 2 bed • 1 bath • 626 ft²
2 bedroom semi-detached house for sale in Priory Street, Farnborough, GU14 7HX, GU14 — £365,000 • 2 bed • 1 bath • 619 ft²
2 bedroom terraced house for sale in Pinehurst Cottages, Pinehurst Avenue, Farnborough, Hampshire, GU14 — £350,000 • 2 bed • 1 bath • 577 ft²
2 bedroom end of terrace house for sale in Farnborough Street, Farnborough, GU14 — £350,000 • 2 bed • 1 bath • 786 ft²


















































