Spacious six-bed home on a very large plot, ideal for family living and home working.
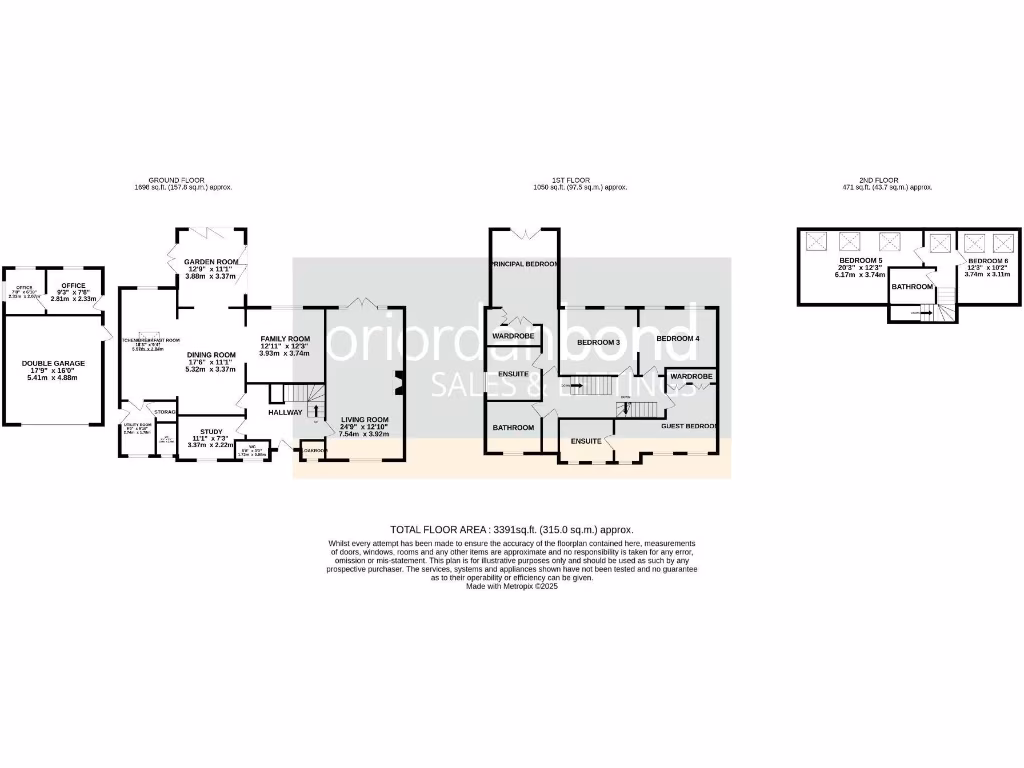
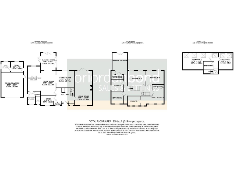
Six bedrooms over three floors, including two en-suites
A substantial six-bedroom detached home set on a very large plot in popular Great Billing, offering flexible accommodation across three floors. The house has been extended and updated in recent years and is presented in tasteful, well-maintained condition throughout. Principal bedroom suite and a second en-suite plus two further bathrooms and a shower room support large-family living.
Ground-floor living is generous: living room, separate dining room, study, open-plan kitchen/dining/family room, garden room and utility, alongside two cloakrooms. Large terrace and private, secluded rear garden provide safe outdoor space for children and entertaining. An extensive block-paved driveway and a double garage with rear offices supply plentiful parking and home-working space.
Practical details suit family needs: freehold tenure, mains gas central heating with boiler and radiators, double glazing, excellent mobile signal and fast broadband. Local state and private schools are within easy reach, and road/rail links (A45 toward the M1/A14 and stations at Northampton/Wellingborough) support commuting.
Notable considerations: the property is council tax band G (quite expensive), and while the house has been updated, glazing install date is unknown and some systems will be around 30 years old given the original build date. Buyers should factor in long-term maintenance on a large detached home and verify any specific renovation or improvement history during survey and enquiries.
4 bedroom detached house for sale in Standing Stones, Great Billing, Northampton, NN3 — £725,000 • 4 bed • 3 bath • 2081 ft²
4 bedroom detached house for sale in Penfold Lane, Great Billing Village, Northampton NN3 — £500,000 • 4 bed • 2 bath • 1850 ft²
5 bedroom detached house for sale in Chantry Close, Great Billing, Northampton, Northamptonshire, NN3 — £1,100,000 • 5 bed • 4 bath • 3620 ft²
4 bedroom detached house for sale in Lady Winefrides Walk, Great Billing, Northampton, NN3 — £470,000 • 4 bed • 1 bath • 2048 ft²
4 bedroom detached house for sale in Russet Drive, Little Billing, NN3 — £475,000 • 4 bed • 2 bath • 1749 ft²
4 bedroom detached house for sale in Cottage Gardens, NORTHAMPTON, Northamptonshire, NN3 — £597,000 • 4 bed • 4 bath • 1841 ft²










































































































































































