Refurbishment-ready family home near Mitcham Common and excellent transport links.
Three bedrooms and two receptions with conservatory
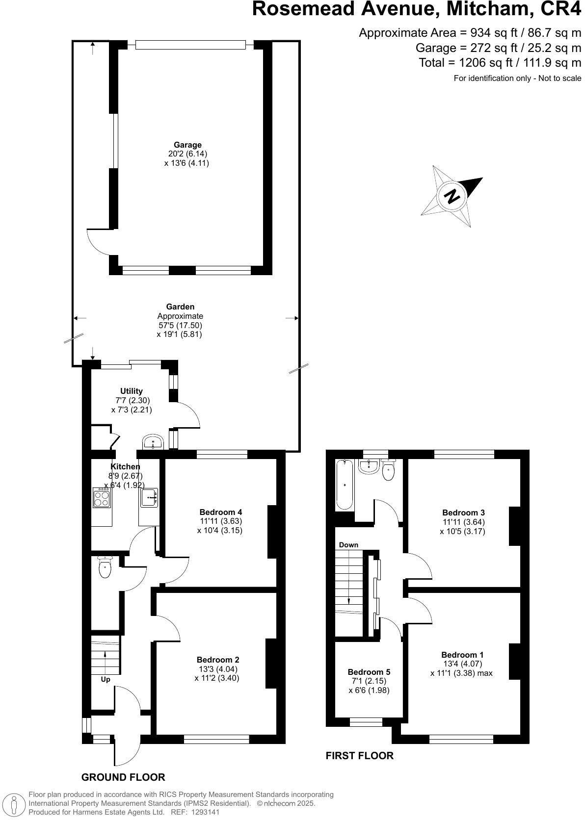
Freehold terraced house, approx 934 sq ft
Needs full modernisation; renovation required throughout
Good local schools; several rated Outstanding
Close to Mitcham Common and excellent transport links
Small rear garden and small plot size
Single bathroom for three bedrooms
Area crime level above average
This three-bedroom terraced freehold in Mitcham offers a practical family layout and clear scope for value uplift. At about 934 sq ft with two reception rooms and a conservatory, the house provides immediate living space while presenting a straightforward refurbishment project for buyers who want to personalise their home.
The location is a major selling point: directly serving good and outstanding local schools (including Harris academies), close to Mitcham Common for outdoor space, and well connected by rail and bus with fast links into central London. Strong local rental demand and improving resale values mean the property suits families wanting long-term stability and investors seeking rental income or a refurb-and-sell opportunity.
Honest drawbacks: the house needs modernisation throughout, including kitchen and likely general updating; the plot is small and there is only one bathroom for three bedrooms. Crime is reported as above average in the area, and some rooms have lower-than-standard ceilings. Buyers should budget for renovation costs and check specifics on any structural or service upgrades required.
Overall, this is a sensible purchase for a family wanting nearby schools and green space or for an investor/developer prepared to refurbish to unlock the property’s rental or resale potential.
3 bedroom terraced house for sale in Almond Way, Mitcham, CR4 1LP, CR4 — £475,000 • 3 bed • 1 bath • 1003 ft²
3 bedroom terraced house for sale in Priestley Road, Mitcham, CR4 — £475,000 • 3 bed • 1 bath • 861 ft²
3 bedroom end of terrace house for sale in Franklin Crescent, Mitcham, CR4 — £450,000 • 3 bed • 1 bath • 874 ft²
3 bedroom terraced house for sale in Manor Road, Mitcham, CR4 — £500,000 • 3 bed • 1 bath • 872 ft²
3 bedroom terraced house for sale in Cambridge Road, Mitcham, CR4 — £450,000 • 3 bed • 1 bath • 941 ft²
3 bedroom end of terrace house for sale in Carisbrooke Road, Mitcham, CR4 — £475,000 • 3 bed • 1 bath • 945 ft²






































