Chain-free 3-bed semi with loft room and driveway — remodel to your taste.
Chain free three-bedroom semi-detached house with loft room
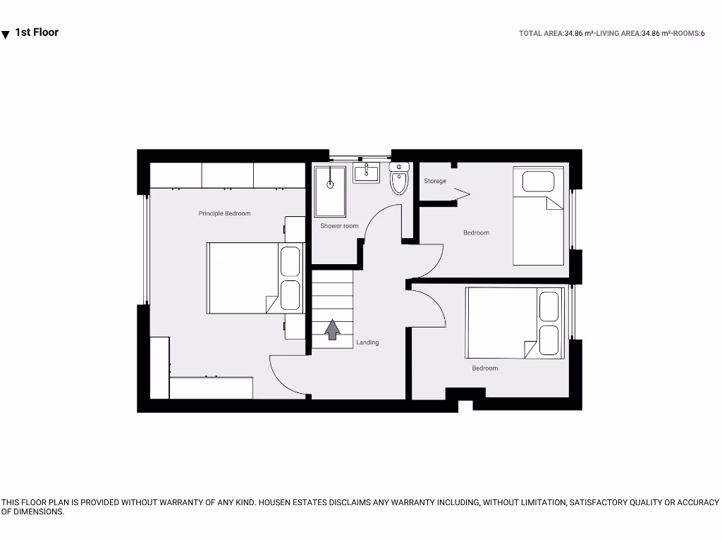
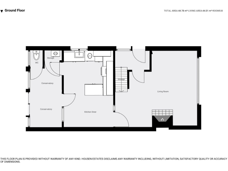
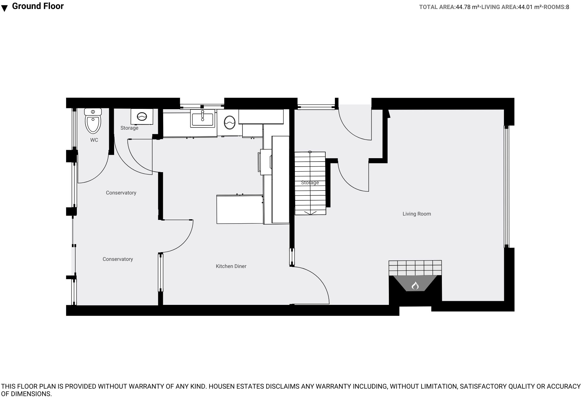
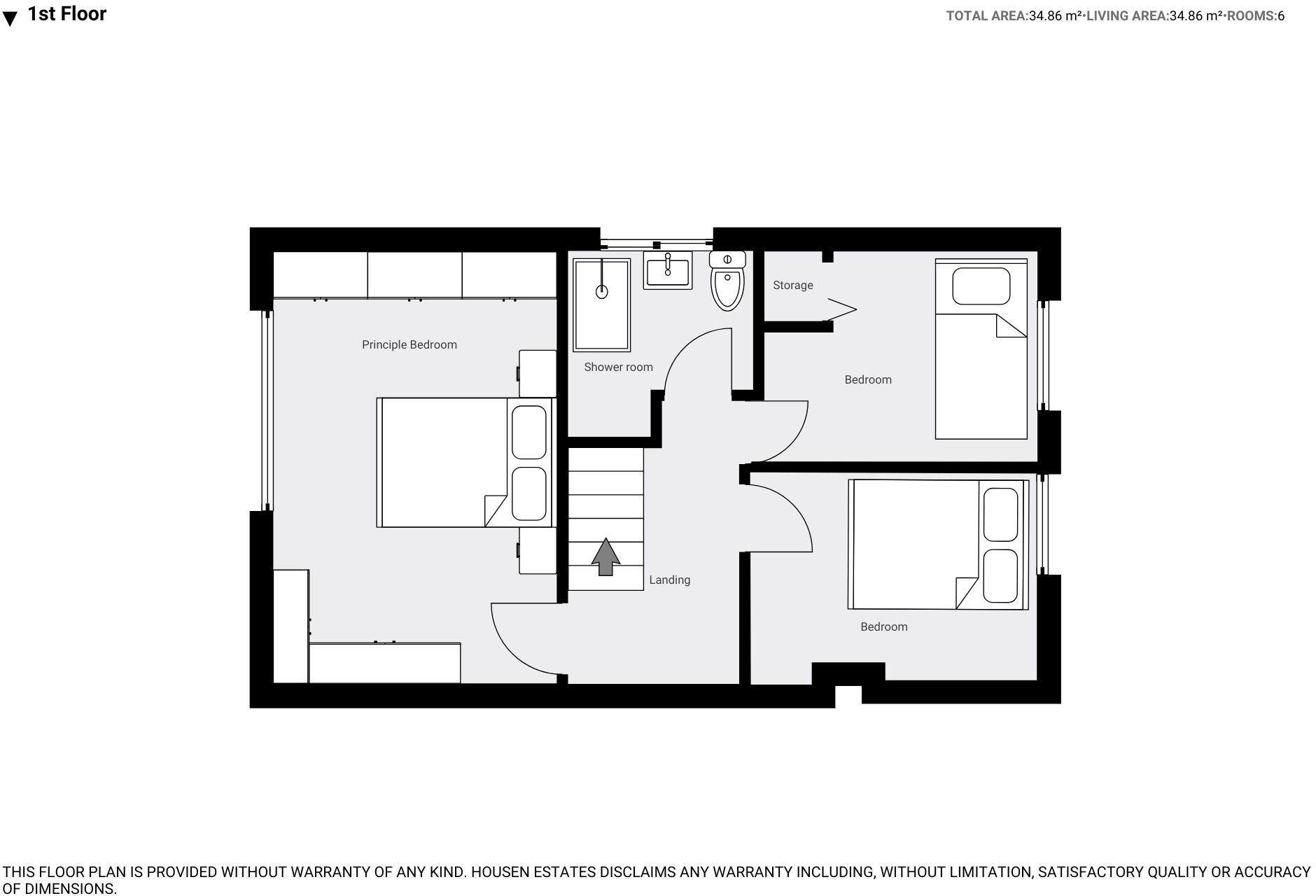
Set on a quiet cul‑de‑sac in St Thomas, this chain‑free semi‑detached home offers practical family living and clear scope for improvement. The layout includes two ground‑floor reception rooms, three bedrooms and an additional loft room previously used as an office — useful as a hobby space, home office or occasional guest room.
The property requires modernisation: the kitchen dates from the 1970s–80s and would benefit from updating, and general cosmetic work is needed throughout. There is one family bathroom and standard ceiling heights; buyers should expect renovation costs when budgeting.
Outside, the driveway provides convenient off‑street parking and the low‑maintenance front garden keeps upkeep simple. The plot is small but the home’s position offers excellent transport links, nearby amenities and easy access to several well‑rated primary and secondary schools, making it well suited to families or buyers looking to add value.
This is a mid‑size, freehold property with low flood risk, low local crime and fast broadband — a practical, affordable renovation project in a comfortable, established neighbourhood.
3 bedroom semi-detached house for sale in Wardrew Road, St Thomas, EX4 — £280,000 • 3 bed • 1 bath • 594 ft²
3 bedroom semi-detached house for sale in Merrivale Road, Exeter, Devon, EX4 — £225,000 • 3 bed • 1 bath • 591 ft²
3 bedroom terraced house for sale in Princes Street North, Exeter, EX2 — £280,000 • 3 bed • 1 bath • 754 ft²
3 bedroom semi-detached house for sale in Newhayes Close, Exeter, EX2 — £325,000 • 3 bed • 1 bath • 861 ft²
3 bedroom semi-detached house for sale in Newman Road, Exeter, EX4 — £250,000 • 3 bed • 1 bath • 732 ft²
3 bedroom terraced house for sale in Old Tiverton Road, Exeter, EX4 — £260,000 • 3 bed • 1 bath • 958 ft²






























































































