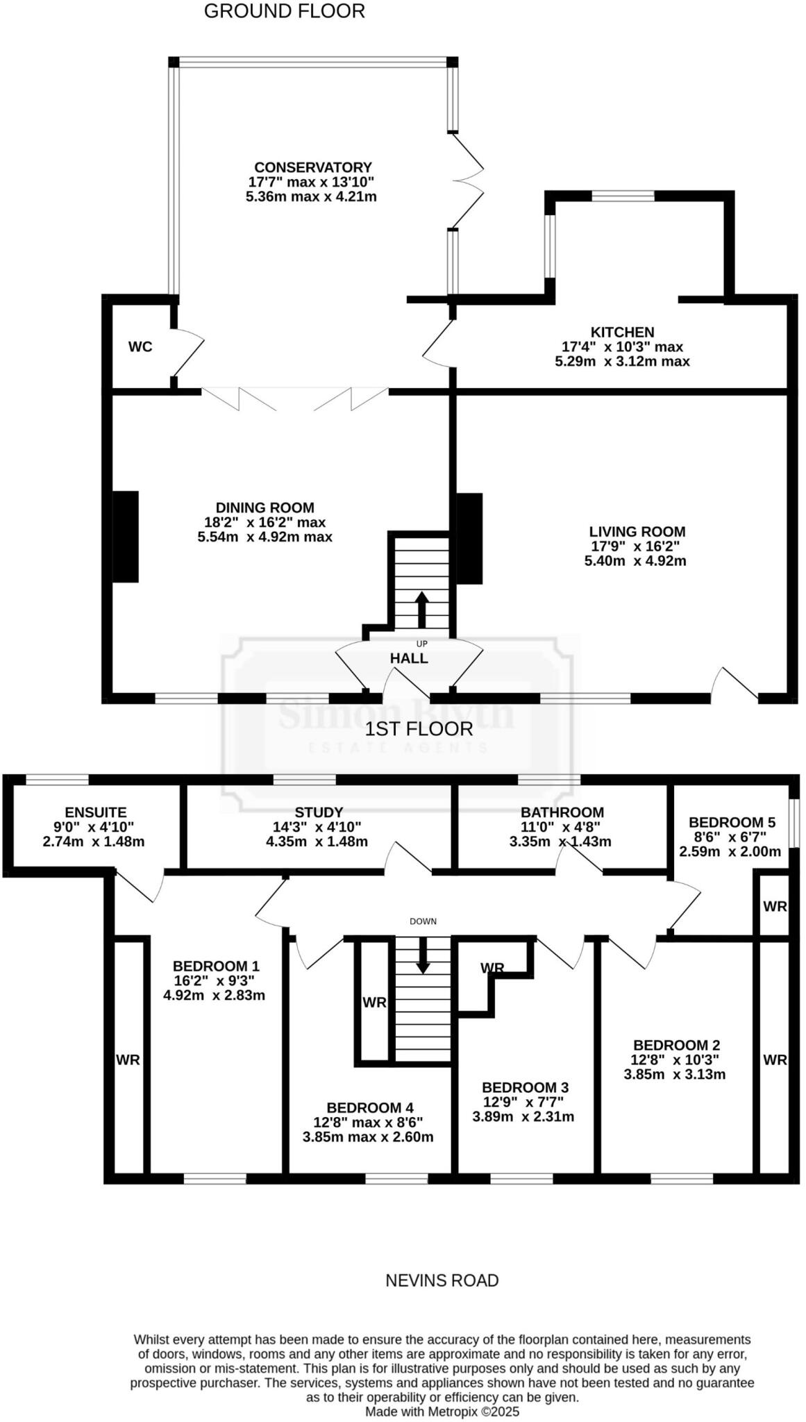
**Standout Features:**
- Spacious five-bedroom end of terrace home, ideal for families
- High-quality modern kitchen with integrated appliances and stylish finishes
- Expansive open-plan living/dining areas leading to a large conservatory
- Bedrooms equipped with built-in furniture, providing ample storage
- Two bathrooms currently undergoing renovation for modern finishes
- Enclosed rear garden and on-street parking
**Summary:**
Step into this remarkable five-bedroom home, a perfect fit for families looking for space and potential. Extensively extended to include a large conservatory and an open-plan dining area, this property boasts high-quality fittings and offers a seamless flow throughout its generously sized rooms. The modern kitchen, equipped with integrated appliances and elegant design, becomes the heart of the home.
While the property does require some renovation, particularly in the bathrooms, this presents an excellent opportunity for buyers to add their personal touch and value. Each bedroom features built-in furniture, ensuring plenty of storage while maximizing space. Nestled in a community with good local schools and amenities, this family-friendly residence is a rare find. Don’t miss out on the chance to own this spacious home with fantastic renovation potential—schedule your viewing today and envision your future here!
4 bedroom detached house for sale in Frank Lane, Dewsbury, WF12 — £575,000 • 4 bed • 3 bath • 2164 ft²
3 bedroom end of terrace house for sale in Regent Mews, Batley, WF17 — £150,000 • 3 bed • 1 bath • 700 ft²
3 bedroom town house for sale in Lower Hall Close, Liversedge, WF15 — £200,000 • 3 bed • 1 bath • 731 ft²
2 bedroom terraced house for sale in High Road, Earlsheaton, WF12 — £199,950 • 2 bed • 1 bath • 970 ft²
4 bedroom terraced house for sale in Healds Road, Dewsbury, WF13 — £270,000 • 4 bed • 2 bath • 1877 ft²
5 bedroom terraced house for sale in Broomer Street, Ravensthorpe, Dewsbury, WF13 — £185,000 • 5 bed • 3 bath


































































































































