**Standout Features:**
- Impressive Grade II Listed Georgian farmhouse
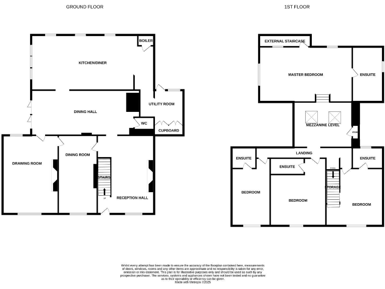
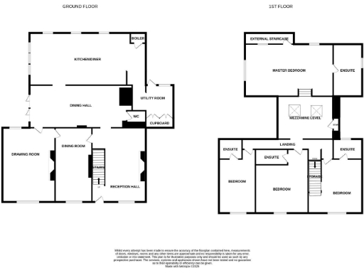
- Expansive living space of approximately 4,500 sqft
- Four spacious bedrooms, each with en-suite bathrooms
- Grand reception area and multiple well-lit reception rooms
- Luxurious modern kitchen with high-end appliances and a large central island
- Beautiful gardens and a secluded courtyard area
- Off-street parking for multiple vehicles
- Chain-free sale
**Potential Concerns:**
- Listed status may present renovation challenges
- Average local crime rate and area deprivation
**Summary:**
Discover this magnificent Georgian Grade II Listed farmhouse situated on the serene outskirts of Prestbury village. Spanning approximately 4,500 sqft, this exceptional property offers an abundance of space with four large bedrooms—each equipped with its own luxurious en-suite. The grand entry leads to a stunning reception area adorned with original features, while the modern, open-plan kitchen boasts bespoke fittings and high-end appliances, perfect for both cooking and entertaining.
Step outside to find beautifully landscaped gardens and a charming courtyard, providing an idyllic space for outdoor relaxation or gatherings. The property benefits from multiple reception rooms that fill with natural light, creating inviting spaces for family and friends. With off-street parking available, this residence is designed to accommodate a comfortable lifestyle.
While the listed status adds character, it may pose challenges for future renovations. Set in a tranquil area with mature trees providing privacy, this prestigious home offers a unique blend of historic charm and modern luxury. This exceptional opportunity is ideal for families seeking a spacious, comfortable abode in a desirable location. Don’t miss the chance to make this stunning property your own; schedule a viewing today!
5 bedroom detached house for sale in Macclesfield Road, Prestbury, Macclesfield, SK10 — £2,950,000 • 5 bed • 6 bath • 4892 ft²
6 bedroom detached house for sale in Butley Hall House, Scott Road, Prestbury, SK10 — £2,575,000 • 6 bed • 4 bath • 4500 ft²
5 bedroom detached house for sale in Heybridge Lane, Prestbury, Macclesfield, Cheshire, SK10 — £1,295,000 • 5 bed • 4 bath • 3178 ft²
5 bedroom detached house for sale in Wych Lane, Adlington, Macclesfield, SK10 — £1,095,000 • 5 bed • 2 bath • 2396 ft²
5 bedroom detached house for sale in Meadow Drive, Prestbury, Macclesfield, SK10 — £1,395,000 • 5 bed • 3 bath • 2800 ft²
4 bedroom detached house for sale in Bollin Grove, Prestbury, MACCLESFIELD, SK10 — £1,150,000 • 4 bed • 3 bath • 2700 ft²














































































































