Energy-efficient family house with large garden, cabin and double garage.
Three double bedrooms, principal with en-suite
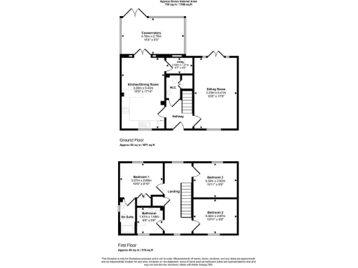
A modern three-double-bedroom home built in 2021, set on the edge of Bishops Caundle and offered with no onward chain. The layout suits family life: a double-aspect sitting room, open-plan kitchen/dining area opening to a conservatory, utility and cloaks on the ground floor, with three double bedrooms (principal with en-suite) on the first floor. The house benefits from an air-source heat pump, mechanical ventilation system, high-performance double glazing and an Energy Efficiency Rating of B.
Outside the plot is a standout feature — a generous, well-enclosed rear garden with patio, lawn and a large timber cabin suitable as a home office or hobbies room, plus private driveway parking and a double garage with loft storage. The development provides pleasant countryside views and direct access to nearby walks and village amenities, making this a convenient rural family base.
Practical points to note: the home runs primarily on electricity via an air-source heat pump (tariff unspecified), and it forms part of a managed development with an estimated annual charge of about £260. The property is freehold and covered by the original build guarantee, which supports a straightforward move for buyers looking for low-maintenance, energy-efficient living in a peaceful village setting.
This property will suit families seeking modern construction and outside space in a quiet Dorset village, particularly those who value energy efficiency, work-from-home flexibility and easy access to countryside walks. Viewing is recommended to appreciate the plot size and flexible living spaces.
3 bedroom semi-detached house for sale in Hill View, Bishops Caundle, Sherborne, Dorset, DT9 — £295,000 • 3 bed • 1 bath • 1085 ft²
4 bedroom link detached house for sale in Church Green, Bishops Caundle, Sherborne, DT9 — £350,000 • 4 bed • 1 bath • 1138 ft²
4 bedroom detached house for sale in Golden Hill, Stourton Caundle, DT10 — £750,000 • 4 bed • 3 bath • 1952 ft²
4 bedroom barn conversion for sale in Stony Lane, Bishops Caundle, DT9 — £700,000 • 4 bed • 3 bath • 2074 ft²
3 bedroom detached house for sale in Higher Stour Meadow, Marnhull, DT10 — £625,000 • 3 bed • 3 bath • 1342 ft²
4 bedroom detached house for sale in Shillingstone Lane, Okeford Fitzpaine, Blandford Forum, DT11 — £525,000 • 4 bed • 2 bath • 1279 ft²














































