Compact, characterful home minutes from river, shops and direct trains to London.
Chain free Victorian mid-terrace in Lower Wivenhoe
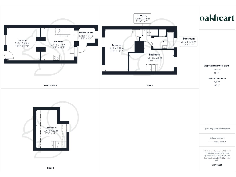
This mid-terrace Victorian home in Lower Wivenhoe offers characterful, compact living minutes from the River Colne and the train station. The ground floor has a welcoming lounge leading to a bright kitchen, plus a useful utility room with garden access. Upstairs are two well-proportioned bedrooms and a modern bathroom, while a converted loft room provides flexible extra space for a home office or guest use. The property is freehold and offered chain free, making it ready for a quick move or rental let. Practical strengths include double glazing (installed post-2002), mains gas central heating with boiler and radiators, very low flood risk, excellent mobile signal and a location within walking distance of shops, cafés, pubs, the university and direct rail services to London. Note the terrace’s compact footprint and narrow frontage: plot and rooms are small-to-average for a two-bedroom house, with no off-street parking and restricted kerbside parking outside. External walls are original solid brick (likely not insulated) and some external paintwork/render may need attention. Broadband speeds are average and the garden is very small. These features make the house well suited to first-time buyers, small families, professionals needing rail links, or investors seeking a straightforward town-centre let.
2 bedroom terraced house for sale in Alma Street, Wivenhoe, CO7 — £295,000 • 2 bed • 1 bath • 797 ft²
2 bedroom terraced house for sale in Bath Street, Wivenhoe, Colchester, CO7 — £325,000 • 2 bed • 1 bath • 834 ft²
2 bedroom terraced house for sale in Station Road, Wivenhoe, CO7 — £290,000 • 2 bed • 1 bath • 962 ft²
2 bedroom terraced house for sale in Paget Road, Wivenhoe, Colchester, CO7 — £245,000 • 2 bed • 1 bath • 499 ft²
2 bedroom terraced house for sale in Paget Road, Wivenhoe, CO7 — £245,000 • 2 bed • 1 bath • 633 ft²
3 bedroom semi-detached house for sale in West Street, Wivenhoe, CO7 — £400,000 • 3 bed • 2 bath • 1143 ft²














































































