**Standout Features:**
- Spacious 1950s detached chalet-style bungalow
- Situated on 1.11 acres of beautifully landscaped gardens
- Well-maintained outdoor swimming pool
- Generous bedroom sizes offering ample furniture space
- Ideal location within the picturesque South Downs National Park
- Potential for use as a holiday home or Airbnb for additional income
- Ample off-road parking and excellent mobile signal
- Fast broadband speeds
**Concerns:**
- Council tax is relatively high
- Property has cavity walls with no insulation
- Requires verification of any claims pertaining to appliances and services
***
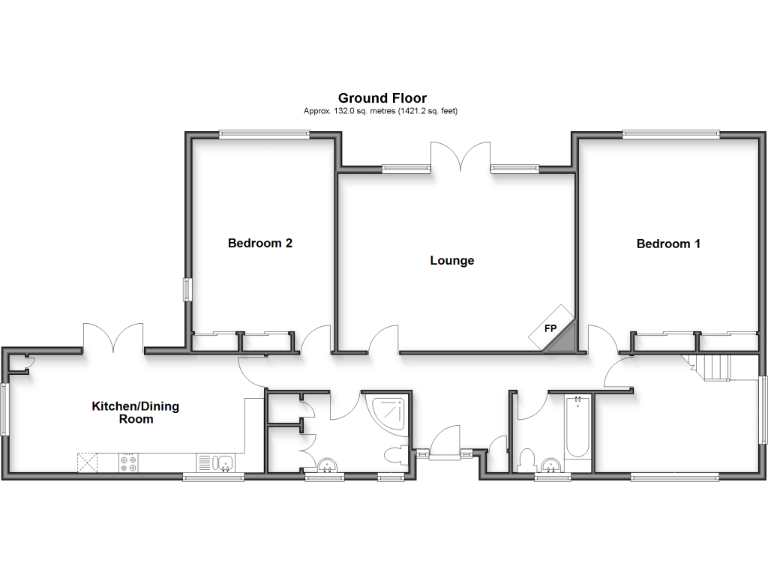
Discover the charm of this spacious 1950s chalet-style family bungalow, nestled within 1.11 acres of delightful gardens in the South Downs National Park. This property boasts a well-maintained outdoor swimming pool, perfect for summer relaxation. With three generously-sized bedrooms and multiple living spaces, there is room for both family comfort and entertaining.
The potential for income is at your fingertips—consider using the bungalow as a holiday rental or Airbnb, catering to tourists seeking a serene countryside escape. While the area features a rich rural lifestyle and excellent mobile connectivity, do bear in mind the higher council tax and verify any property specifics, including heating and appliance conditions. With fast broadband speeds and ample off-road parking, this exceptional property brings both tranquility and opportunity. Don’t miss your chance to own a unique slice of countryside living that may not be available for long!
3 bedroom semi-detached bungalow for sale in Timberlea Close, Ashington, Pulborough, West Sussex, RH20 — £500,000 • 3 bed • 2 bath • 1152 ft²
4 bedroom detached house for sale in Houghton, Arundel, West Sussex BN18 — £995,000 • 4 bed • 3 bath • 2135 ft²
3 bedroom detached house for sale in Mill Road, West Chiltington, RH20 — £1,275,000 • 3 bed • 3 bath • 5000 ft²
5 bedroom detached house for sale in The Fairway, Midhurst, West Sussex, GU29 — £650,000 • 5 bed • 2 bath • 1620 ft²
3 bedroom detached house for sale in Houghton Lane, Bury, Pulborough, West Sussex, RH20 — £700,000 • 3 bed • 2 bath • 1335 ft²
4 bedroom detached house for sale in Hale Hill, West Burton, RH20 — £1,650,000 • 4 bed • 3 bath • 4689 ft²










































































































































