PO20 8PF - 4 bedroom semidetached house for sale in West Bracklesham D…

View on Property Piper

4 bedroom semi-detached house for sale in West Bracklesham Drive, Bracklesham Bay, PO20

Summary - SEAGULLS, WEST BRACKLESHAM DRIVE PO20 8PF

4 bed 4 bath Semi-Detached

**Standout Features:**
- Four-bedroom semi-detached house with versatile accommodation
- Spacious open plan kitchen/sitting room with large south-facing balcony and sea glimpses
- Two en suite shower rooms and family bathroom
- Self-contained two-bedroom cabin with kitchenette and shower room, currently an AirBnB
- Located on a highly sought-after sea-fronted road in Bracklesham Bay
- Excellent condition with ample parking and garage
- Close to local amenities and walking distance to the beach

**Summary:**
Experience coastal living in this beautifully maintained four-bedroom semi-detached house on a sought-after sea-fronted road in Bracklesham Bay. With an open plan kitchen and sitting room that opens to a generous south-facing balcony offering sea glimpses, this property is perfect for relaxing or entertaining. The ground floor hosts three bedrooms, including one with an en suite, alongside a modern family bathroom, while a self-contained two-bedroom cabin in the rear garden presents an excellent opportunity for additional income via AirBnB or accommodating guests.

Set within a vibrant coastal village, you'll enjoy easy access to local shops, cafes, and transport links to Chichester. The ample parking, garage, and excellent condition of the home enhance its appeal, making this a perfect opportunity for families or investors alike. Don't miss the chance to make this coastal gem your own!

Property Details

Brochure Descriptions

Image Descriptions

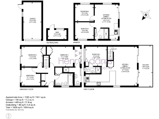
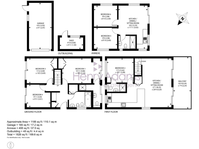
Floorplan Description

Rooms

Textual Property Features

Detected Visual Features

EPC Details

Nearby Schools

Nearest Bars And Restaurants

,,,,}

Nearest General Shops

,,}

Nearest Grocery shops

,,}

Nearest Supermarkets

,,}

Nearest Religious buildings

,,}

Nearest Medical buildings

,,,}

Nearest Airports

}

Nearest Leisure Facilities

,,,,}

Nearest Tourist attractions

,,}

Nearest Train stations

,,,,}

Nearest Bus stations and stops

,,,,}

Nearest Hotels

,,}

Tags

Local Market Stats

AirBnB Data

Similar Properties

Meta

High Res Images

Compatible Images

Low res Images

Thumbnails

Raw Images

High Res Floorplan Images

Compatible Floorplan Images

Low res Floorplan Images

FloorplanImages Thumbnail

Raw Floorplan Images