Chain-free three-bed with big garden — ideal for buyers ready to renovate.
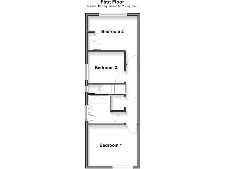
Three bedrooms, one bathroom, approx 770 sq ft (modest living space)
Set on a generous corner plot in Cranleigh, this three-bedroom semi-detached house offers clear scope to create a comfortable family home. The property is chain-free, has plenty of off-road parking and a large rear garden — useful for families, gardeners or anyone wanting outside space. Broadband and mobile signals are good, and local schools and the high street are within easy reach.
The house is a 1970s build (cavity walls, double glazing) with gas central heating to radiators. Internally the layout is traditional with a lounge, separate dining room, kitchen and cloakroom on the ground floor, and three bedrooms plus a single bathroom upstairs. The overall living area is modest at around 770 sq ft, so expect cosy rooms rather than large open-plan spaces.
This property is offered by the Modern Method of Auction. Buyers should note there is a non-refundable Reservation Fee (4.2% of the purchase price, minimum £6,000) plus an administration fee, and the sale is subject to an undisclosed reserve price. The method may restrict some mortgage lending and requires completion within the auction timescales (56 days after draft contract). Prospective purchasers must check the Buyer Information Pack and carry out their own due diligence.
The house requires modernisation throughout and presents an opportunity to add value through refurbishment. The roof appears to be older asbestos-style sheeting (as noted in the description), so replacement or specialist remedial work should be factored into budgets. With a reasonable plot, good location and no onward chain, this will suit buyers willing to renovate — including families, first-time buyers with renovation plans, or investors prepared to update the property.
3 bedroom semi-detached house for sale in The Drive, Cranleigh, Surrey, GU6 — £500,000 • 3 bed • 1 bath • 937 ft²
3 bedroom semi-detached house for sale in The Drive, Cranleigh, Surrey, GU6 — £330,500 • 3 bed • 1 bath • 699 ft²
3 bedroom detached house for sale in St Nicholas Avenue, Cranleigh, GU6 — £650,000 • 3 bed • 1 bath • 1152 ft²
3 bedroom semi-detached house for sale in Canfold Cottages, Bookhurst Road, Cranleigh, GU6 — £625,000 • 3 bed • 2 bath • 1132 ft²
3 bedroom semi-detached house for sale in Peregrine Close, Cranleigh, Surrey, GU6 — £495,000 • 3 bed • 2 bath • 1185 ft²
3 bedroom detached house for sale in Hewitts Road, Cranleigh, Surrey, GU6 — £550,000 • 3 bed • 2 bath • 958 ft²










































