Long lease, private parking and good rental prospects near transport and schools.
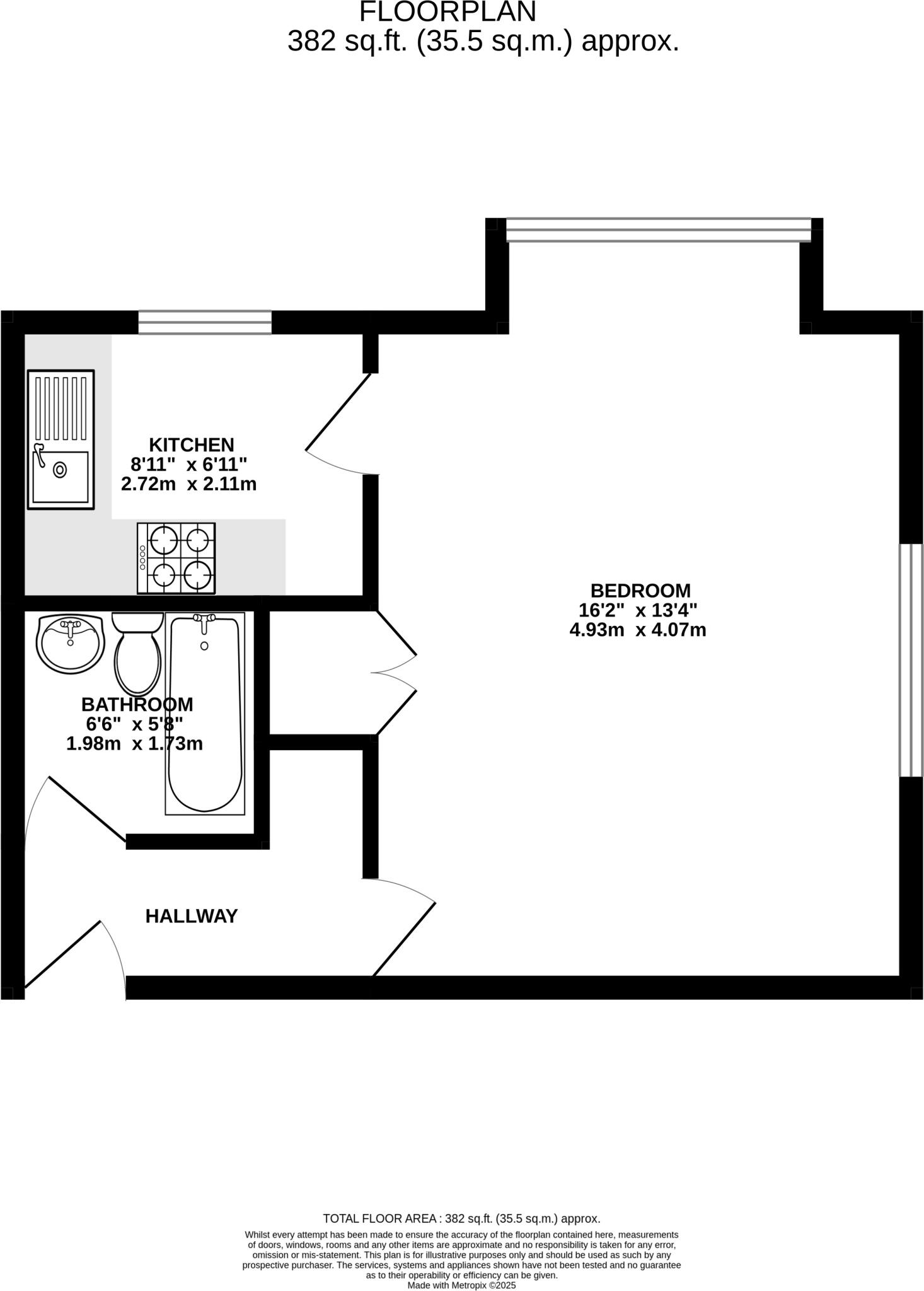
Large studio layout with separate kitchen and defined living area
Private off-street parking included — uncommon for flats
110 years remaining on lease — long leasehold security
Approximate rental value £1,100 pcm — decent investment yield
Service charge approximately £1,600 per year — factor into costs
Electric room heaters and electric main fuel — potentially higher bills
382 sq ft total — compact overall size, limited storage
Dated 1980s condition — requires cosmetic updating and possible upgrades
This generous studio apartment sits in a well-regarded 1980s development in Purley, offered with private off-street parking and a long 110-year lease. The separate kitchen and clear layout make the 382 sq ft space feel more functional than a typical studio, appealing to first-time buyers or buy-to-let investors. Local amenities, good transport links and several highly rated schools are within easy reach.
The flat is currently dated and shows typical 1980s wear; cosmetic updating and a kitchen/bathroom refresh will unlock immediate value. Heating is by electric room heaters and the building uses electricity as its main fuel, which could mean higher running costs compared with gas-heated homes. Service charges average £1,600 per year and council tax band is not confirmed — both important for budgeting.
For investors the approximate rental value is £1,100 pcm, giving straightforward lettings potential in this part of Purley. For a first-time buyer, the long lease and private parking are rare positives at this price band, but plan for refurbishment and higher energy bills. Overall this is a practical, well-located home with clear scope for improvement and value uplift.
Studio flat for sale in Fairbairn Close, Purley, CR8 — £160,000 • 1 bed • 1 bath • 376 ft²
Studio flat for sale in Fairbairn Close, Purley, CR8 — £155,000 • 1 bed • 1 bath • 373 ft²
Studio flat for sale in Fairbairn Close, Purley, CR8 — £160,000 • 1 bed • 1 bath • 420 ft²
Studio flat for sale in Fairbairn Close, Purley, CR8 — £160,000 • 1 bed • 1 bath • 376 ft²
Studio flat for sale in Brighton Road, Purley, CR8 — £170,000 • 1 bed • 1 bath • 310 ft²
Studio flat for sale in Fairbairn Close, Purley, CR8 — £160,000 • 1 bed • 1 bath • 373 ft²


































