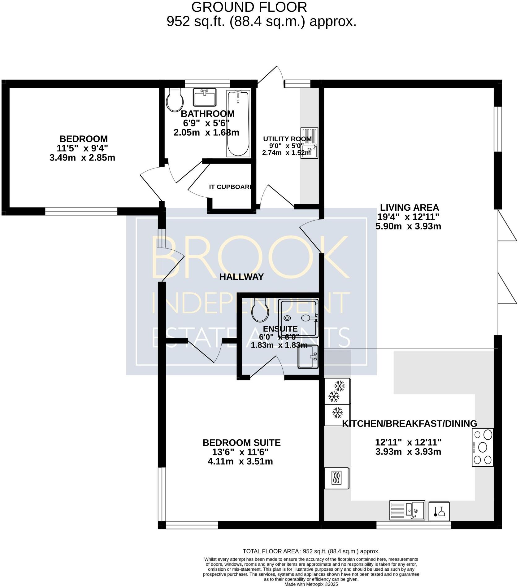
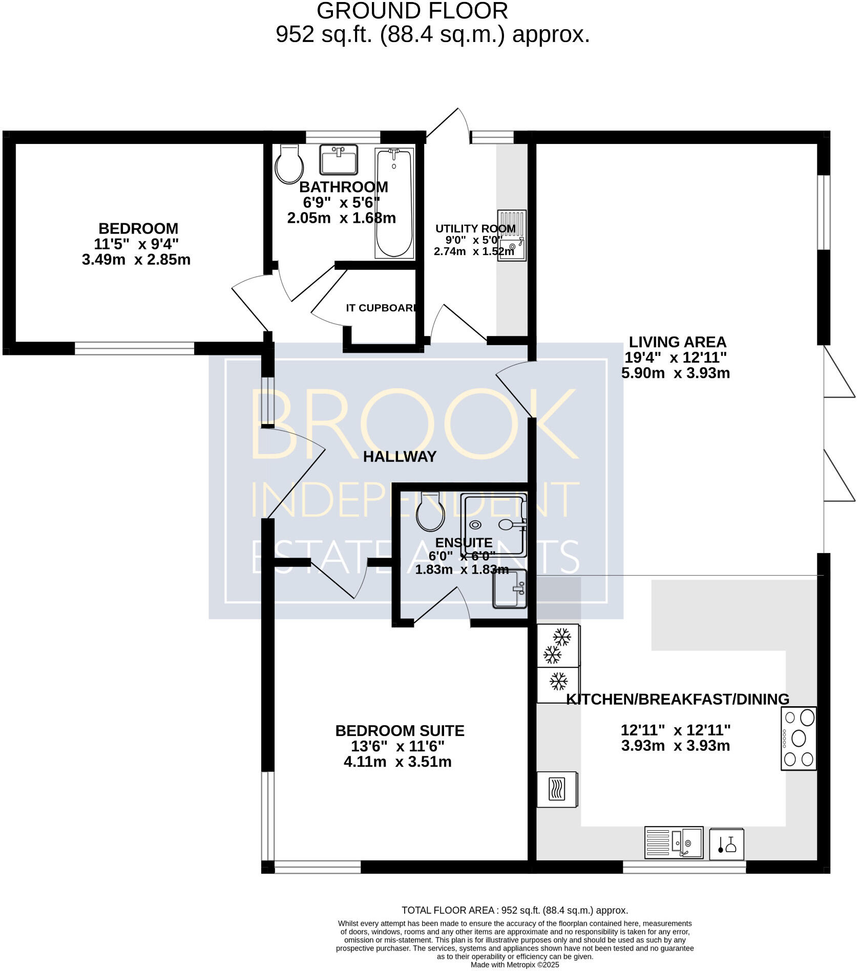
**Standout Features:**
- Modern, detached two-bedroom bungalow
- Fully renovated with high-end finishes and energy-efficient features
- Private driveway with electric gated entry and EV charging point
- Exceptional open-plan kitchen with luxury appliances and breakfast bar
- Spacious living area with bifold doors leading to a slated sun terrace
- En-suite bathroom in the master bedroom, along with a stylish main bathroom
- Underfloor heating, air source heat pump, and solar panels
- Chain-free with a ten-year ICW building warranty
**Summary Description:**
Discover luxurious living in this contemporary, newly renovated two-bedroom bungalow located in the desirable SO31 7DP postcode. With a smart, gated driveway for privacy and an EV charging point, this eco-friendly home stands out with its seamless blend of modern design and functionality. Step inside to find spacious, light-filled rooms featuring high-quality finishes, including a striking open-plan kitchen equipped with top-of-the-line BOSCH appliances — ideal for entertaining. The living space flows effortlessly to a sun-drenched terrace, perfect for enjoying the outdoor garden retreat.
Both bedrooms offer ample space, with the master suite complete with a stylish en-suite bathroom and modern fixtures. Enjoy the added convenience of a separate utility room and efficient heating systems throughout. Situated close to Locks Heath Centre and surrounded by lush greenery, this bungalow is perfect for families or retirees seeking a peaceful yet well-connected lifestyle. This exceptional property is move-in ready and waiting for you to call it home. Don't miss out on this opportunity—homes like this in such a sought-after location don't last long!
4 bedroom bungalow for sale in Locks Road, Locks Heath, Southampton, Hampshire, SO31 — £585,000 • 4 bed • 1 bath • 1446 ft²
3 bedroom bungalow for sale in Fleet End Road, Warsash, Southampton, Hampshire, SO31 — £625,000 • 3 bed • 2 bath • 1477 ft²
2 bedroom bungalow for sale in South Street, Pennington, Lymington, Hampshire, SO41 — £525,000 • 2 bed • 1 bath • 727 ft²
2 bedroom bungalow for sale in South Street, Pennington, Lymington, Hampshire, SO41 — £545,000 • 2 bed • 1 bath • 809 ft²
3 bedroom detached bungalow for sale in Segensworth Road, Fareham, PO15 — £535,000 • 3 bed • 2 bath • 1047 ft²
4 bedroom bungalow for sale in Locks Road, Locks Heath, Southampton, Hampshire, SO31 — £585,000 • 4 bed • 2 bath • 1653 ft²










































































































