Spacious two-bedroom dormer with garage and low-maintenance garden.
Chain free sale, immediate vacant possession
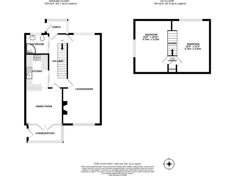
Set quietly at the end of a cul-de-sac, this semi-detached dormer bungalow suits someone looking to downsize without losing space. The home offers a generous through lounge/diner, open-plan kitchen/reception with French doors into a bright conservatory, and a low-maintenance paved rear garden that backs onto a bowling green for a pleasant outlook.
Upstairs there are two double bedrooms with built-in eaves wardrobes, and a landing storage cupboard housing the boiler. Practical features include a private driveway, single garage, large garden shed and off-street parking for multiple cars. Broadband speeds are fast and mobile signal is excellent — useful for remote working or streaming.
Important practical points: the property is LEASEHOLD and offered chain free, with just one ground-floor bathroom. While many fittings are present and the house shows well, some cosmetic updating could personalise the space to your taste. The area is very low crime with affordable council tax and local schools rated Good, making this a comfortable, low-hassle move for older buyers or anyone seeking an easy-to-manage home.
Viewings are recommended to appreciate the interior space, cul-de-sac setting and private garden backing onto open greenery.
2 bedroom semi-detached bungalow for sale in Winton Avenue, Pemberton, Wigan, WN5 9HQ, WN5 — £190,000 • 2 bed • 1 bath • 1115 ft²
2 bedroom semi-detached house for sale in Bor Avenue, Wigan, WN3 — £230,000 • 2 bed • 2 bath • 869 ft²
2 bedroom detached bungalow for sale in Leighton Drive, Leigh, WN7 — £270,000 • 2 bed • 2 bath • 872 ft²
2 bedroom bungalow for sale in Brook Meadow, Westhoughton, Bolton, Greater Manchester, BL5 — £230,000 • 2 bed • 1 bath • 804 ft²
2 bedroom detached bungalow for sale in Hallworthy Close, Leigh, Greater Manchester, WN7 — £365,000 • 2 bed • 1 bath • 1048 ft²
3 bedroom semi-detached bungalow for sale in Taylor Road, Hindley Green, WN2 — £250,000 • 3 bed • 1 bath • 1037 ft²














































































