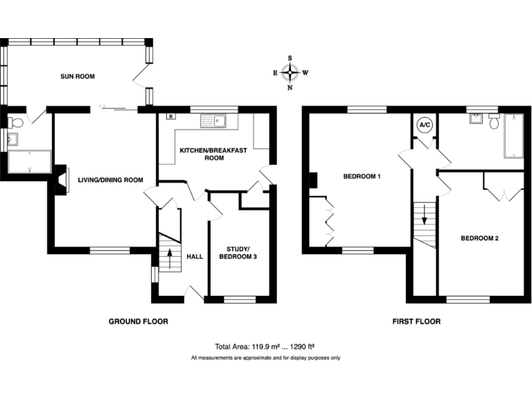
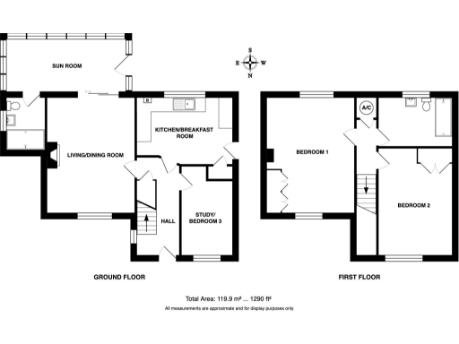
**Standout Features:**
- Light and spacious 2-bedroom detached house in Sheringham.
- Generous rooms with a modern, airy feel.
- South-facing garden, perfect for outdoor living.
- Ample off-road parking and easy access to local amenities.
- Dual ground and first-floor shower rooms.
- Convenient location with low crime rates and fast broadband.
- Chain-free—a rare find!
This charming 2-bedroom detached house in Sheringham, ideally located near the stunning North Norfolk coast, is an invitation to comfort and tranquility. Built in the 1980s and presented in great condition, the home boasts generous living spaces, including a bright living/dining room with a cozy brick fireplace, and a delightful conservatory leading out to an attractive south-facing garden. The property features ample off-road parking and is designed for accommodating either a growing family or retirees seeking space and ease of single-level living.
Enjoy the benefits of modern amenities with gas central heating and uPVC double glazing throughout. Its prime location also offers excellent access to Sheringham’s vibrant array of independent shops, local schools, and stunning nature walks. While there are no major concerns highlighted, it’s wise to ensure the property meets your standards and plans for any desired renovations.
With current market conditions and the property's desirable features, this opportunity is sure to attract interest quickly. Don’t miss your chance to secure a tranquil lifestyle in this beautiful coastal town!
3 bedroom detached house for sale in Sheringham, NR26 — £450,000 • 3 bed • 1 bath • 1165 ft²
4 bedroom detached house for sale in Sheringham, NR26 — £490,000 • 4 bed • 2 bath • 1476 ft²
4 bedroom detached house for sale in Sheringham, NR26 — £490,000 • 4 bed • 2 bath • 1559 ft²
2 bedroom semi-detached bungalow for sale in Sheringham, NR26 — £425,000 • 2 bed • 1 bath • 837 ft²
4 bedroom detached house for sale in New Road, Sheringham, NR26 — £295,000 • 4 bed • 2 bath • 1194 ft²
2 bedroom semi-detached house for sale in High Street new, Sheringham, NR26 — £275,000 • 2 bed • 1 bath • 816 ft²






















































