Peaceful cul-de-sac living with large garden and garage close to village amenities.
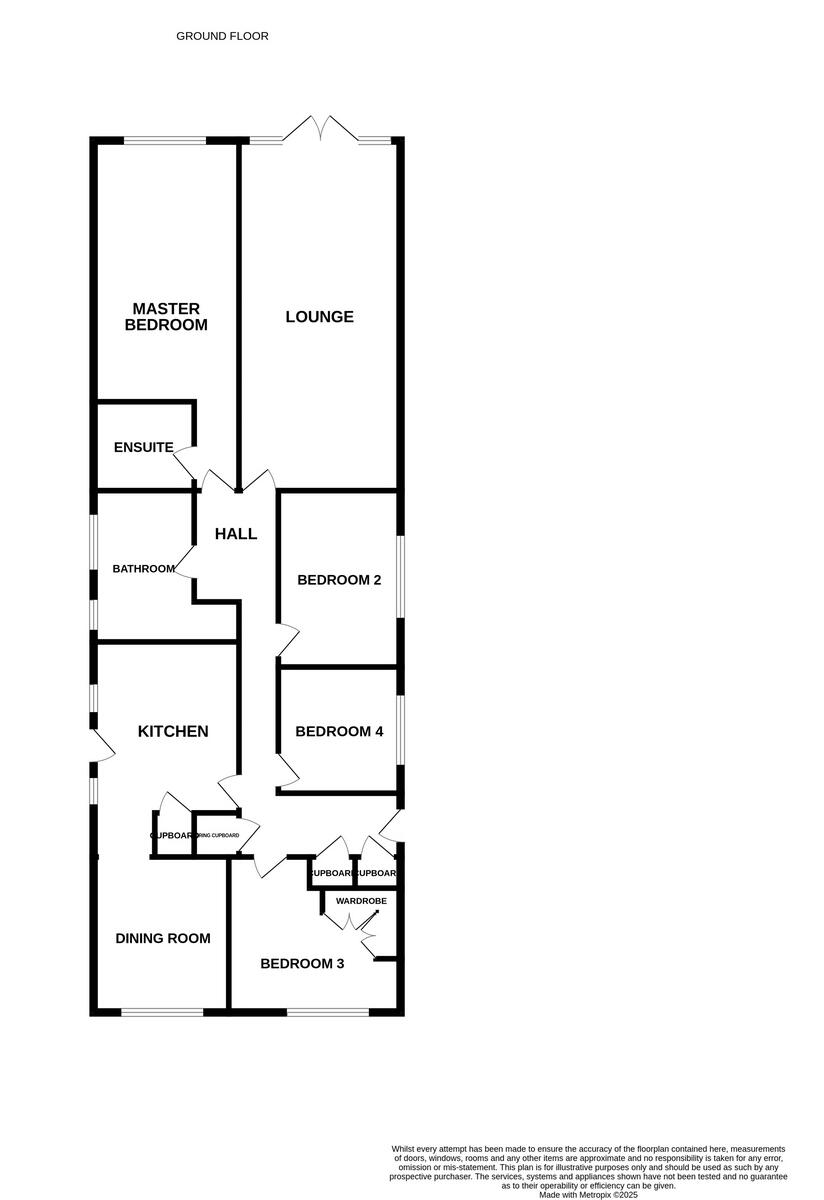
Detached four-bedroom single-storey bungalow, large rooms
Set on a quiet cul-de-sac in Hemsby, this four-bedroom detached bungalow offers comfortable single-level living with generous indoor and outdoor space. The layout includes a large lounge, separate dining room, modern-style kitchen, master bedroom with ensuite, and a family bathroom — a practical setup for families or those wanting to avoid stairs.
Outside, the property sits on a large plot with a good-sized garden, patio area for entertaining, driveway parking and a garage. The plot and single-storey form give scope for garden landscaping or modest extensions (subject to planning) while maintaining a low-maintenance exterior.
Practical considerations: the house dates from the 1950–66 era and is heated by an oil-fired boiler with radiators, and broadband speeds in the area are slow. These factors may influence running costs and connectivity for home-working. There is no flood risk, crime levels are very low, and mobile signal is excellent. The home is offered freehold with moderate council tax.
Local amenities and schools are within easy reach, and the setting suits families seeking a peaceful village location with good road links. Buyers wanting modern connectivity or to reduce heating costs should budget for upgrades, but the property’s size, garden and single-level layout deliver clear everyday comfort and future potential.
3 bedroom semi-detached bungalow for sale in Springfield Close, Hemsby, NR29 — £260,000 • 3 bed • 1 bath
3 bedroom detached bungalow for sale in Bridge Meadow, Hemsby, NR29 — £325,000 • 3 bed • 2 bath • 969 ft²
3 bedroom detached bungalow for sale in Bridge Meadow, Hemsby, NR29 — £325,000 • 3 bed • 1 bath • 1145 ft²
3 bedroom detached bungalow for sale in Springfield North, Hemsby, NR29 — £295,000 • 3 bed • 1 bath • 907 ft²
3 bedroom detached bungalow for sale in Fakes Road, Hemsby, NR29 — £190,000 • 3 bed • 1 bath • 754 ft²
4 bedroom bungalow for sale in Waters Lane, Hemsby, NR29 — £350,000 • 4 bed • 2 bath • 1670 ft²


































































































