**Standout Features:**
- Two-bedroom first-floor flat
- Newly extended 999-year lease
- Chain-free sale
- Spacious kitchen/diner
- Great condition throughout
- Excellent local amenities and transport links
- Nearby parks and recreational areas
**Concerns:**
- High crime rate in the area
- Solid brick walls with no insulation
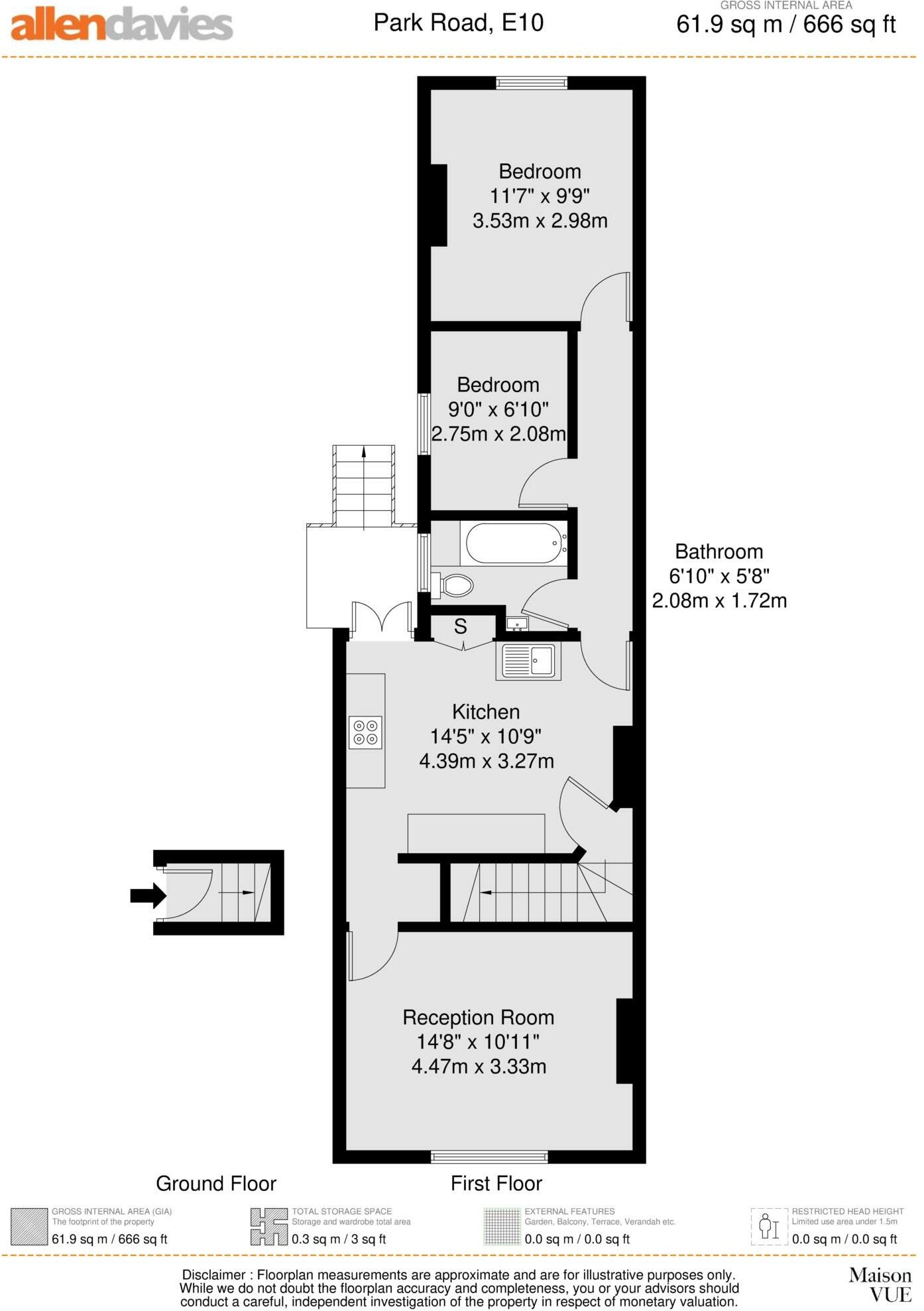
Discover the perfect blend of space and value with this charming two-bedroom first-floor flat, ideally positioned just off Church Road and a short stroll from Leyton High Road.
This well-maintained Victorian property offers a spacious reception room, a generous kitchen/diner, and two cozy bedrooms. With a new 999-year lease and chain-free status, this is an excellent opportunity for first-time buyers looking for comfort and convenience. You'll appreciate the close proximity to outstanding local schools, vibrant shopping facilities, and recreational spots like Jubilee Park and Hackney Marshes, making it a family-friendly choice. Furthermore, with great transport links to Leyton, Walthamstow, and Hackney, commuting is a breeze.
While the property is in great condition, prospective buyers should note the solid brick walls with no insulation, indicating some potential for renovation, which could enhance energy efficiency. With all these features and its attractive guide price range of £325,000 to £350,000, viewing is highly recommended—this unique find won't last long!
2 bedroom flat for sale in Park Road, Leyton, E10 — £300,000 • 2 bed • 1 bath • 705 ft²
2 bedroom flat for sale in Church Road, Leyton, E10 — £325,000 • 2 bed • 1 bath • 732 ft²
2 bedroom flat for sale in Oliver Rd, Oliver, E10 — £300,000 • 2 bed • 1 bath • 483 ft²
2 bedroom flat for sale in Abbotts Park Road, Leyton, E10 — £415,000 • 2 bed • 1 bath • 721 ft²
2 bedroom flat for sale in Murchison Road, London, E10 — £325,000 • 2 bed • 1 bath • 484 ft²
2 bedroom flat for sale in Newport Road, Leyton, E10 — £375,000 • 2 bed • 1 bath • 581 ft²


















































