Mixed-use High Street asset with planning approval and commuter links to London.
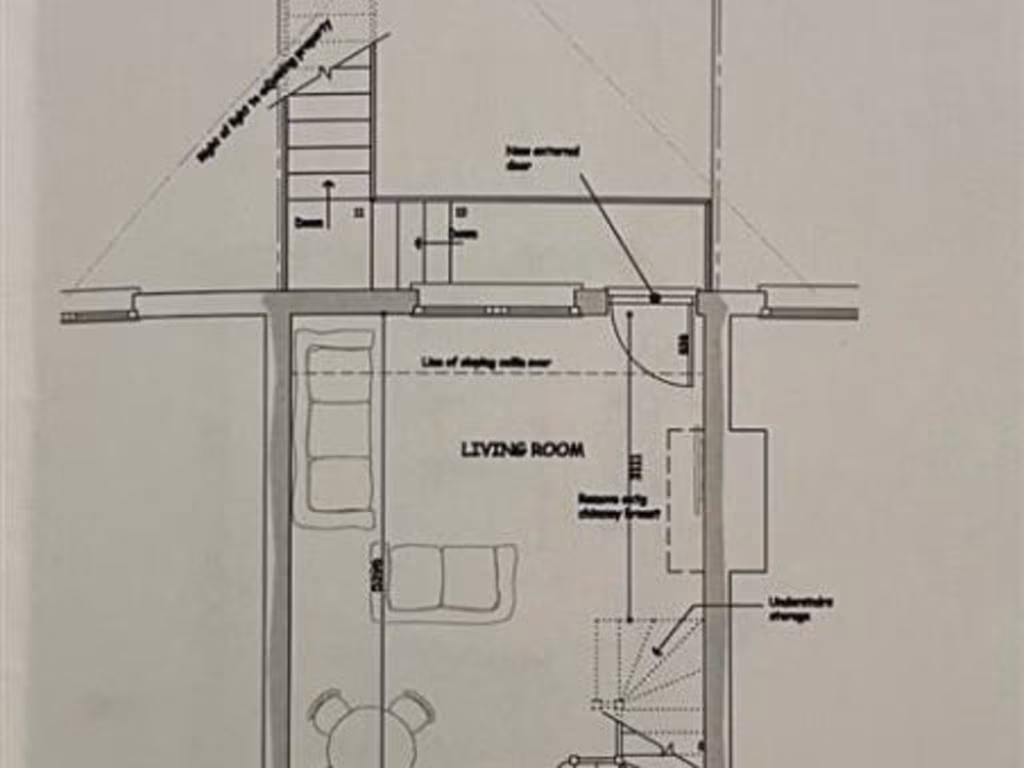
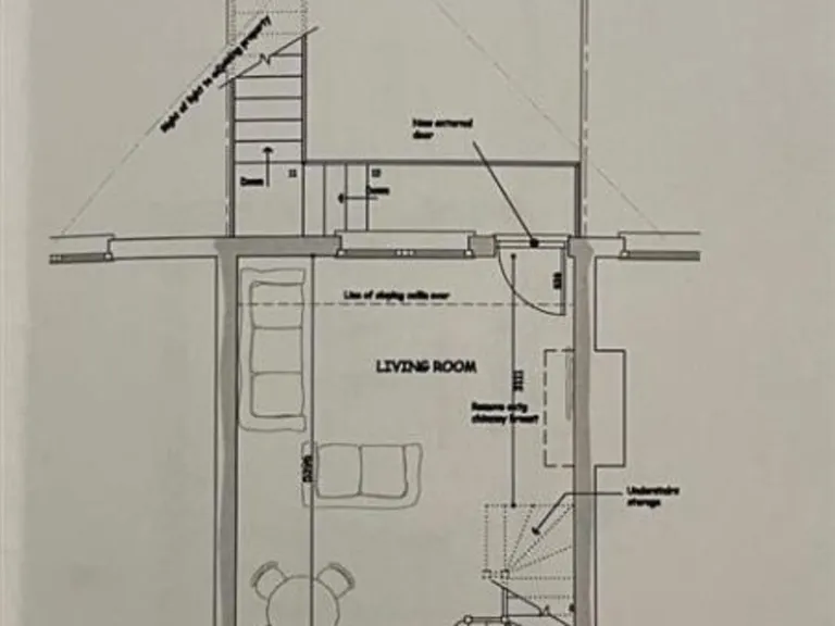
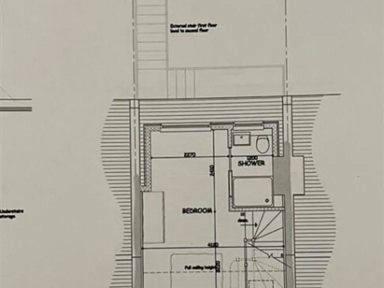
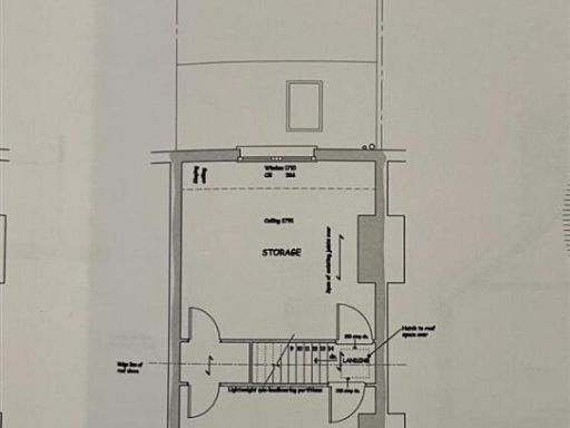
Planning approval for two one-bed apartments including a duplex (ref 23/03052)
A rare mixed-use opportunity on Borough Green High Street with planning permission (ref 23/03052) to convert the upper floors into two one-bedroom apartments, including a duplex using the loft. The ground-floor retail unit retains a prominent double-bay frontage and scope for a rear extension to improve shop storage, kitchen and staff facilities — supporting immediate rental income while residential work is completed.
This property will appeal to investors or small developers seeking short-term returns and longer-term yield. The site benefits from strong commuter links (regular services to London Victoria, Charing Cross and London Bridge within c.40–37 minutes) and an active village centre location close to shops, cafés and local amenities. Planning is granted but any alternative layout would be subject to further approvals.
There are important practical considerations: the building is an early 20th-century solid-brick mid-terrace with no assumed cavity insulation, electric storage heating, double glazing installed before 2002 and an EPC rating of D. The rear yard is small and plot size is limited, so external amenity is restricted. Some refurbishment and modernisation will be needed to complete the apartments and to improve energy efficiency, which should be factored into costs.
No onward chain simplifies purchase timing. For buyers wanting an income-producing asset close to public transport with clear conversion plans already in place, this offers a straightforward development/refurbishment project with both immediate and phased upside.
Residential development for sale in 138 - 148 High Street, Sevenoaks, TN13 — £1,500,000 • 1 bed • 1 bath • 5956 ft²
2 bedroom flat for sale in Borough Green, TN15 — £265,000 • 2 bed • 1 bath • 778 ft²
Office for sale in Unit 6, Station Court, Station Approach, Sevenoaks, TN15 8BG, TN15 — £1,300,000 • 1 bed • 1 bath • 9612 ft²
High street retail property for sale in High Street, Tonbridge, Kent, TN9 — £600,000 • 1 bed • 1 bath • 4357 ft²
4 bedroom terraced house for sale in Marsham Street, Maidstone, ME14 — £275,000 • 4 bed • 1 bath • 1454 ft²
Commercial property for sale in High Street, Sevenoaks, TN13 — £875,000 • 1 bed • 1 bath






























































