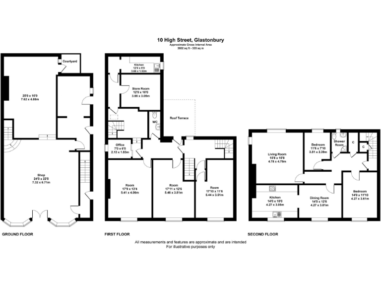
### Standout Features:
- Prominent Grade II listed building on the bustling High Street
- Two ground floor retail units with the main retail space available for lease
- First-floor offices/therapy rooms with charming sash windows
- Top-floor two-bedroom apartment with stunning rooftop views of Glastonbury Abbey and Tor
- Large commercial footprint at 3,602 sq. ft. with potential for diverse uses
- Auction sale presenting a unique investment opportunity
### Summary:
Discover a remarkable investment opportunity in the heart of Glastonbury with this large, Grade II listed building that offers a combination of retail and residential spaces. Encompassing two spacious ground floor retail units and first-floor offices, this property benefits from high street visibility and significant foot traffic, perfect for attracting customers. The upper two-bedroom apartment features stylish living spaces with breathtaking rooftop views, providing a comfortable haven for tenants or potential owners.
While this property boasts unique architectural charm, it does come with challenges typical of listed buildings, requiring careful consideration for maintenance and renovation. With nearby amenities like supermarkets, schools with good ratings, and vibrant local markets, the location ensures convenience for both commercial and residential occupants.
This sizeable property is ready for new opportunities in a town rich in history and community spirit. Don't miss the chance to secure a distinctive space in Glastonbury's dynamic and sought-after market—act fast, as potential properties like this don’t stay available for long!
Commercial property for sale in The Gauntlet, 11 High Street, Somerset, Glastonbury, BA6 9DP, BA6 — £2,000,000 • 1 bed • 1 bath • 2181 ft²
2 bedroom apartment for sale in High Street, Glastonbury, BA6 — £185,000 • 2 bed • 2 bath • 586 ft²
High street retail property for sale in 68/68a High Street, Glastonbury, Somerset, BA6 9DZ, BA6 — £225,000 • 1 bed • 1 bath • 932 ft²
4 bedroom end of terrace house for sale in Magdalene Street, Glastonbury, Somerset, BA6 — £685,000 • 4 bed • 2 bath • 2083 ft²
3 bedroom end of terrace house for sale in Norbins Road, Glastonbury, BA6 — £499,950 • 3 bed • 3 bath • 1583 ft²
2 bedroom end of terrace house for sale in Avalon Mews Glastonbury, BA6 — £220,000 • 2 bed • 1 bath • 578 ft²


































































