**Standout Features:**
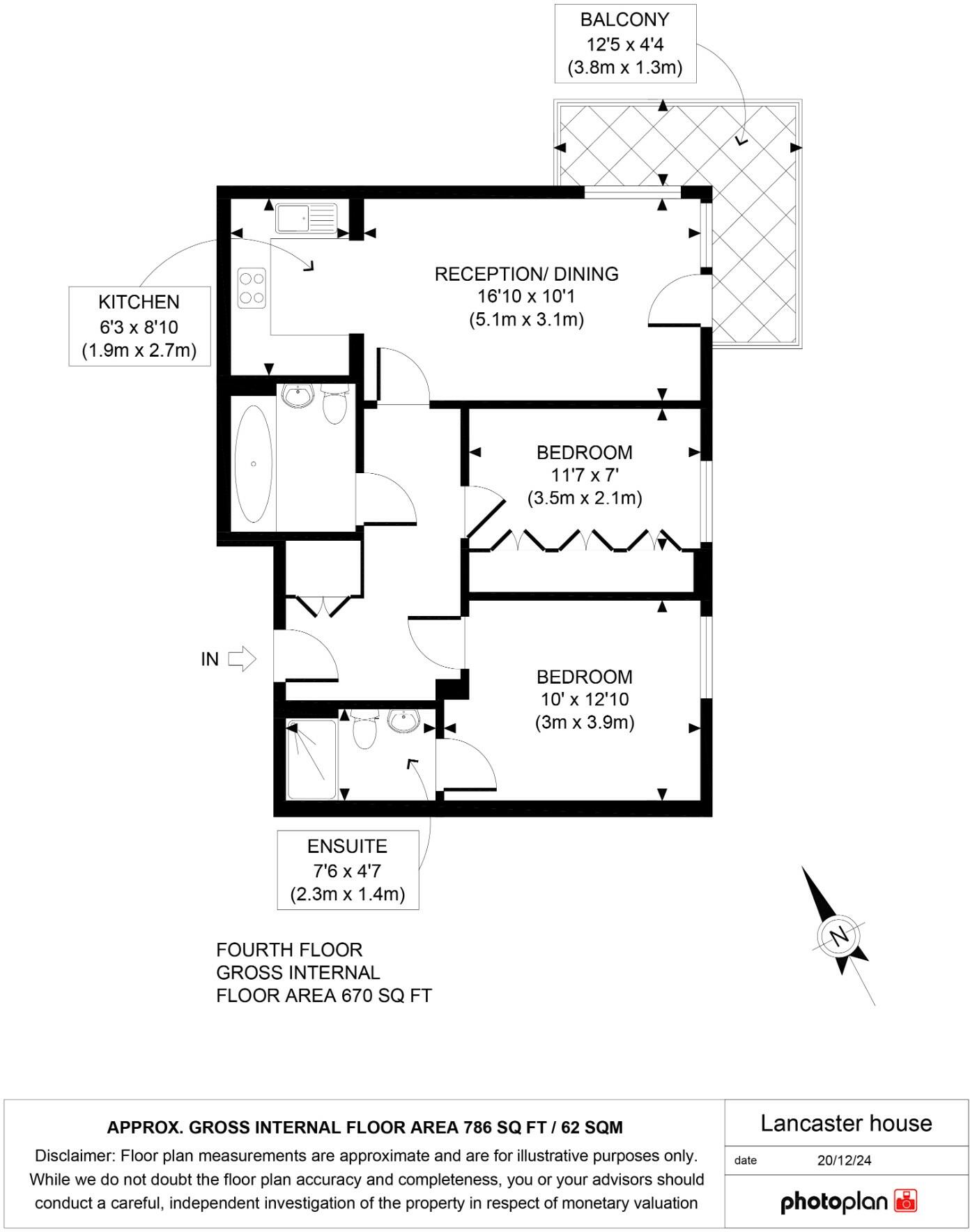
- Modern 2-bedroom fourth floor flat with lift access
- 12'5" x 4' balcony offering stunning views over Mayesbrook Park
- Open-plan reception/dining room (16'10" x 10'1") with natural light
- En-suite bathroom/WC plus an additional bathroom/WC
- Contemporary fitted kitchen and secure entry
- Low crime area with good mobile signal and fast broadband
- Close proximity to Lodge Avenue shopping and transport links, including the Elizabeth Line
**Notable Concerns:**
- External Wall Fire Risk Assessment (EWS1) rated B2; remedial work needed, but the original builder will cover costs
- Service charge of approximately £2030.52 and ground rent of £250
This impeccably presented 2-bedroom flat (circa 786 sq ft) offers modern urban living paired with comfort and convenience. Ideal for first-time buyers or investors, it boasts a spacious open-plan living area that seamlessly blends dining and relaxation, complemented by a fully fitted kitchen. The two generously sized bedrooms provide ample space, while the en-suite bathroom adds a touch of luxury. Located in the sought-after Academy Central Development with easy access to local amenities and transport, this property presents a fantastic opportunity.
While the flat requires some attention due to ongoing cladding remedial work, it assures relatively low maintenance and an affordable council tax band C. Don't miss the chance to secure this urban sanctuary with remarkable views—properties like this don't stay on the market long!
2 bedroom flat for sale in Roehampton House, Academy Way, Dagenham, RM8 — £275,000 • 2 bed • 2 bath • 644 ft²
2 bedroom flat for sale in Roehampton House, Academy Way, Barking, RM8 — £260,000 • 2 bed • 2 bath • 683 ft²
1 bedroom flat for sale in Brunel House, Dagenham, RM8 — £165,000 • 1 bed • 1 bath • 428 ft²
2 bedroom flat for sale in Pavilion Court, Goresbrook Road, Dagenham, RM9 — £250,000 • 2 bed • 1 bath • 635 ft²
2 bedroom flat for sale in Champness Road, Barking, London, IG11 — £300,000 • 2 bed • 1 bath • 769 ft²
2 bedroom apartment for sale in Exeter House, 41 Academy Way, Dagenham, RM8 — £270,000 • 2 bed • 2 bath • 816 ft²


















































