Bright two-bedroom second-floor apartment with parking and porter, close to East Putney tube..
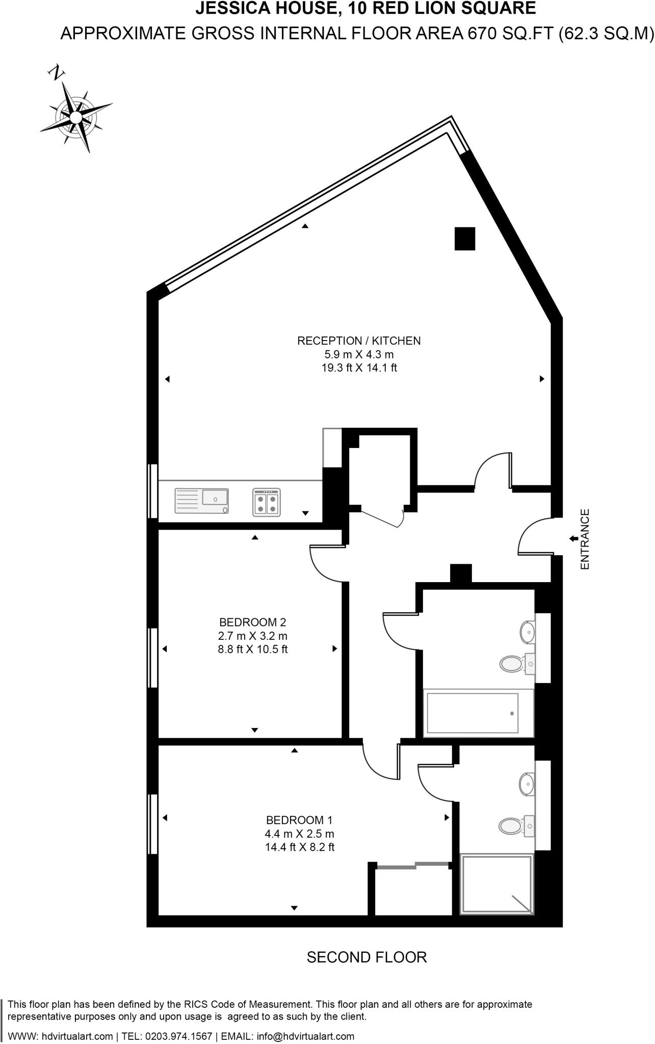
670 sq ft two-bed, dual-aspect open-plan reception
Light-filled, contemporary two-bedroom apartment in Jessica House, positioned on the second floor and offering around 670 sq ft of practical living. The dual-aspect open-plan reception has large double-glazed windows and engineered wood floors, creating a bright, sociable space that flows into a fitted kitchen with integrated appliances. The principal bedroom benefits from a built-in wardrobe and en-suite shower room; a second bedroom and a main bathroom complete the layout.
Practical extras include an allocated underground parking space and a daily porter service — useful in a busy Wandsworth location. Transport links are strong: East Putney Underground (Zone 2) and local rail and bus connections are within easy reach, plus a wide selection of shops, cafés and amenities close by. Broadband speeds and mobile signal are both reported as good, supporting home working and streaming.
Notable considerations: heating is by electric room heaters rather than gas central heating, which can be more expensive and may affect running costs. Council tax is above average locally, and the property is leasehold with a ground rent of £300 (details provided) though the lease length is very long (circa 992 years). The wider area shows some signs of deprivation despite its strong transport and amenity offer; crime is reported as average.
This apartment will suit first-time buyers or investors seeking a modern, low-maintenance London base with parking and strong connectivity. It offers straightforward move-in condition and rental appeal, while purchasers should budget for possibly higher energy and council-tax bills compared with gas-heated homes.
2 bedroom apartment for sale in Red Lion Square, Battersea, SW18 — £500,000 • 2 bed • 1 bath • 611 ft²
2 bedroom flat for sale in Jessica House,
10 Red Lion Square, SW18 — £500,000 • 2 bed • 1 bath • 700 ft²
2 bedroom apartment for sale in Hardwicks Square, London, SW18 — £450,000 • 2 bed • 2 bath • 671 ft²
2 bedroom flat for sale in Wandsworth High Street, London, SW18 — £550,000 • 2 bed • 1 bath • 775 ft²
2 bedroom apartment for sale in West Hill, London, SW18 — £450,000 • 2 bed • 1 bath • 678 ft²
1 bedroom apartment for sale in Hardwicks Square, London, SW18 — £385,000 • 1 bed • 1 bath • 550 ft²














































