**Standout Features:**
- Extended 1930s mid-terrace house
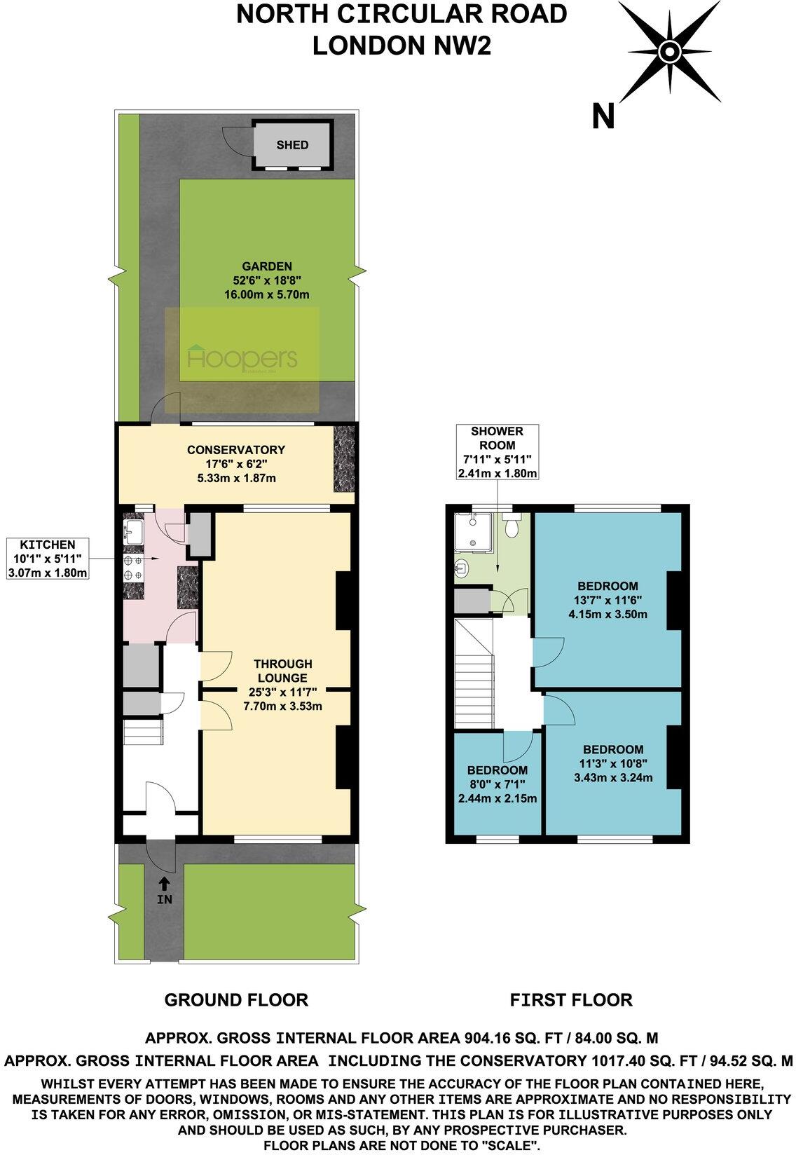
- 3 bedrooms and 1 bathroom
- Chain-free sale
- South-facing rear garden
- Views over Welsh Harp Reservoir
- Gross internal area of approximately 1,017 sq ft
- Close proximity to Brent Cross shopping complex and transport links
**Concerns:**
- Built before 1900, with solid brick walls (assumed no insulation)
- Average local area crime rate
This charming 1930s extended mid-terrace house is a fantastic find for families or first-time buyers seeking comfort and convenience. With a generous floor area of 1,017 sq ft, the layout features a spacious through lounge and adjoining conservatory bathed in natural light, perfect for relaxation or family time. The south-facing rear garden offers a serene escape and is ideal for gardening or outdoor activities, all while enjoying stunning views over the Welsh Harp Reservoir.
Situated in a thriving community and conveniently near Staples Corner, this home provides easy access to essential shopping at Brent Cross, with the Brent Cross West station nearby for a quick, 15-minute commute into London. The property’s chain-free status makes moving in seamless and stress-free. While the house boasts modern amenities like gas central heating and double-glazed windows, potential buyers should note that the building is from an era with minimal insulation and may require updates over time. With moderate council tax rates and a pleasant family-oriented community, this property presents an excellent opportunity that won’t last long!
3 bedroom terraced house for sale in North Circular Road, London, NW2 — £495,000 • 3 bed • 1 bath • 926 ft²
3 bedroom terraced house for sale in Dawpool Road, London, NW2 — £599,000 • 3 bed • 1 bath • 912 ft²
3 bedroom terraced house for sale in Chipstead Gardens, London, NW2 — £625,000 • 3 bed • 2 bath • 1101 ft²
3 bedroom terraced house for sale in North Circular Road, London NW2 — £495,000 • 3 bed • 1 bath • 940 ft²
3 bedroom terraced house for sale in Review Road, London, NW2 — £550,000 • 3 bed • 1 bath • 915 ft²
3 bedroom terraced house for sale in North Circular Road, Neasden, London, NW2 — £480,000 • 3 bed • 1 bath • 1061 ft²






















































