Blank-canvas starter home with generous private garden and strong rental potential.
- Two bedrooms, end-of-terrace with 614 sqft (approx.)
- Deceptively large enclosed rear garden and garden shed
- Requires full updating: bathroom, likely kitchen, flooring and décor
- Online auction sale with Buyer’s Premium £6,600 and legal fees £396
- Freehold tenure; built circa 1976–82 with double glazing
- Fast broadband and excellent mobile signal
- High local crime and very deprived area — affects resale/rental risk
- Council tax above average; small overall plot size
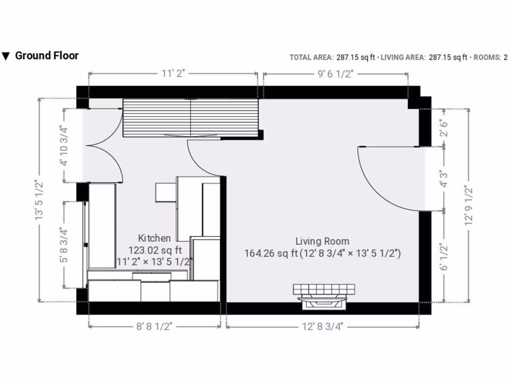
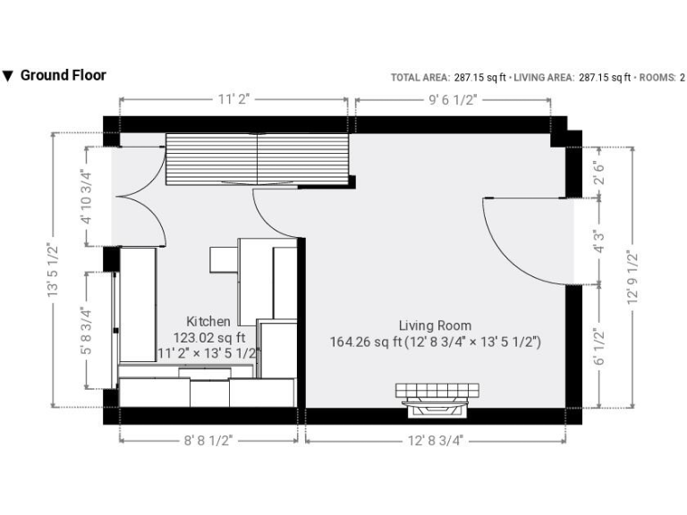
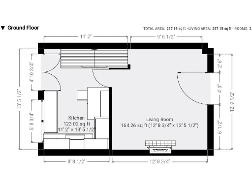
This two-bedroom end-of-terrace offers a low-cost entry into homeownership or a straightforward investment in Maltby. The home is small (approx. 614 sq ft) and requires updating throughout — most notably a new bathroom, possible kitchen replacement, fresh flooring and general redecoration — so expect renovation work before moving in or letting.
The property sits on a small plot with a deceptively large enclosed rear garden, paved and gravel areas, and a garden shed — a rare outdoor space for the price and useful for future landscaping or extension subject to consent. Built c.1976–82, it has double glazing, gas central heating with a boiler and radiators, and filled cavity walls.
Important buying facts: the sale is by online auction with a non-refundable Buyer’s Premium of £6,600 (including VAT) plus a legal pack fee of £396 (including VAT). There is a starting bid and an undisclosed reserve; buyers will have up to 56 working days to exchange and complete. The area shows high crime levels and very high deprivation, and council tax is above average — factors that affect living experience and lettability.
This house will suit a first-time buyer comfortable with a renovation project or an investor seeking strong rental yield after works. Carry out full due diligence, review the legal pack, and budget for the buyer’s fee and refurbishment costs before committing.
2 bedroom property for sale in Church Lane, MALTBY, Rotherham, S66 — £85,000 • 2 bed • 1 bath
2 bedroom terraced house for sale in Lincoln Street, Maltby, Rotherham, South Yorkshire, S66 — £65,000 • 2 bed • 1 bath • 814 ft²
2 bedroom end of terrace house for sale in Albert Street, Maltby, Rotherham, South Yorkshire, S66 — £85,000 • 2 bed • 1 bath • 851 ft²
2 bedroom end of terrace house for sale in Meadowhall Road, Rotherham, S61 — £70,000 • 2 bed • 1 bath • 955 ft²
3 bedroom semi-detached house for sale in High Street, Rotherham, S63 — £200,000 • 3 bed • 1 bath • 1533 ft²
3 bedroom semi-detached house for sale in South Street, Rotherham, S61 — £90,000 • 3 bed • 1 bath • 883 ft²


































