Ready-to-live two-bedroom home with garage, driveway and sunny garden.
Very well presented throughout, newly renovated
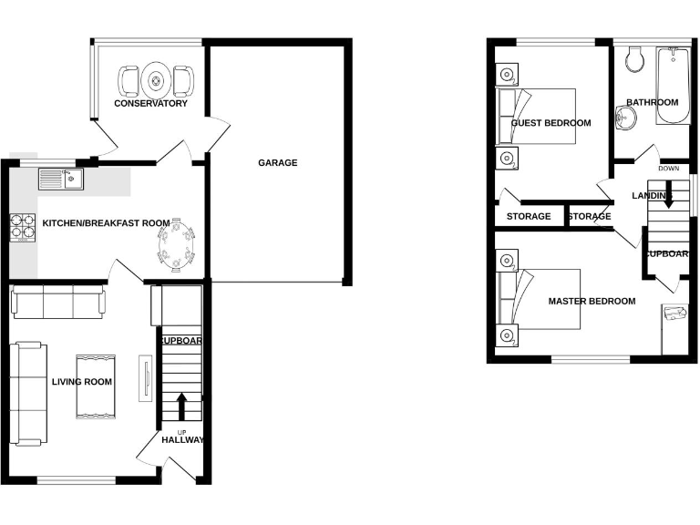
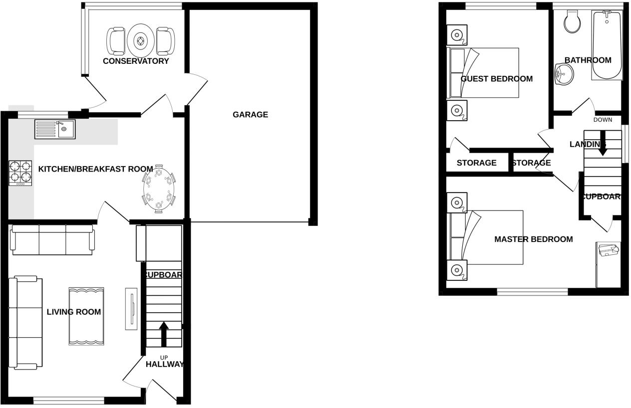
Tucked at the quiet end of a cul‑de‑sac on Bridgwater’s popular east side, this freshly modernised two‑bedroom semi provides a move‑in ready home with clear practical advantages. The ground floor offers a living room, a large contemporary kitchen and a bright sun room extension that opens directly to the rear garden. Upstairs are two good‑sized bedrooms and an updated family bathroom.
Outside there is a wide pavior driveway for several vehicles leading to a single garage with an up‑and‑over door and an electric car charging point. The rear garden is described as larger‑than‑average with lawn, two patio areas, a pergola and mature planting that creates a private, low‑maintenance outdoor space. Local amenities, good road and national transport links and easy access to nearby countryside add everyday convenience.
Practical points to note: the property is freehold, has double glazing fitted since 2002 and was constructed in the late 1970s/early 1980s. Heating is by oil‑fired boiler and radiators, which some buyers prefer but others may view as a higher running‑cost or future upgrade consideration. The area has average recorded crime and local deprivation indicators; council tax is inexpensive and broadband speeds are fast.
This house will suit first‑time buyers or downsizers seeking a ready‑to‑live family home with parking, garage and a sunny garden, as well as investors looking for a straightforward rental in a well‑connected town location. The accommodation and outdoor space reduce immediate renovation needs, though buyers who prefer gas heating or a larger plot should weigh those preferences against the property’s many practical benefits.
2 bedroom semi-detached house for sale in Elizabeth Way, Bridgwater, Somerset, TA6 — £215,000 • 2 bed • 1 bath • 944 ft²
2 bedroom terraced house for sale in Fir Tree Close, Bridgwater, TA6 — £219,950 • 2 bed • 1 bath • 547 ft²
4 bedroom detached house for sale in 3 Earls Close, Bridgwater, TA6 — £325,000 • 4 bed • 3 bath
3 bedroom end of terrace house for sale in Cedar Close, Bridgwater, TA6 — £259,950 • 3 bed • 1 bath
4 bedroom semi-detached house for sale in 4 Broadoak Road, Bridgwater, TA6 — £300,000 • 4 bed • 1 bath
2 bedroom semi-detached house for sale in Moonraker Close, Bridgwater, TA6 — £189,950 • 2 bed • 1 bath • 570 ft²


































































































































