B1 2HG - 1 bed prime broad street pub in Broad Street, B1 2HG

View on Property Piper

Pub for sale in Former Player's Bar, 240 Broad Street, Birmingham, B1

Summary - 240 BROAD STREET BIRMINGHAM B1 2HG

1 bed 1 bath Pub

Prominent Broad Street leisure site — major size, tram stop outside, renovation required..
- Prime Broad Street frontage with large glazed retail frontage
- New West Midlands Metro tram stop directly outside
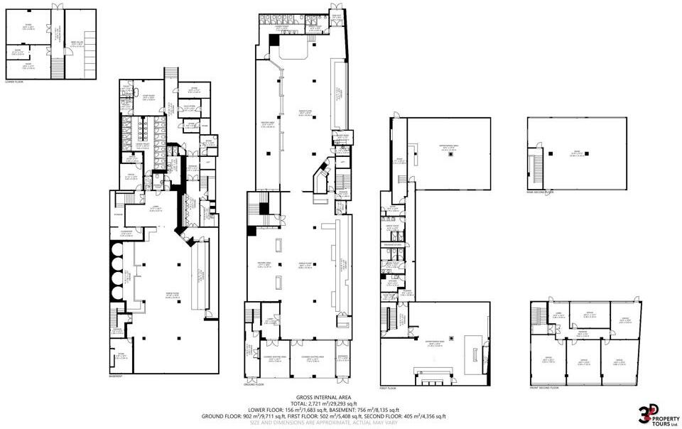
- Extremely large total area ~29,293 sq ft across multiple levels
- Previously configured as pub/bar with part-fitted trade areas
- Currently closed and requires renovation and investment to reopen
- Offers invited for long leasehold in excess of £2.5m (or new FRI lease)
- Very high local crime and very deprived area indicators
- Very slow broadband speeds; excellent mobile signal
This prominent former bar occupies a high-profile corner on Broad Street, directly opposite Brindleyplace and with the new West Midlands Metro stop outside. The building extends across ground, lower-ground (basement) and upper floors, previously arranged as a main trading bar at ground and basement levels with self-contained upper floors — total area approximately 29,293 sq ft. Offers are invited for the long leasehold in excess of £2,500,000; alternatively a new FRI lease is offered.

The property is a strong candidate for an operator or investor seeking central leisure or alternative commercial uses, subject to landlord consent and planning. It benefits from excellent visibility, multiple street-level entrances, large glazed frontage and immediate access to heavy footfall nodes like Brindleyplace, nightlife and transit connections. The accommodation is part-fitted but currently closed for business and will require capital investment to reopen and modernise.

Material drawbacks are significant and should inform viewing decisions: the building needs renovation, broadband speeds are very slow, and the surrounding area records very high crime and very high deprivation indices. Any change of use or redevelopment will depend on landlord approval and planning consent; VAT may be chargeable on figures quoted. These are realistic considerations for operators, developers or investors planning works, fit-out or repositioning in a challenging but prominent city-centre location.

Property Details

Brochure Descriptions

Image Descriptions

Textual Property Features

Target Audience

AI Tags

Detected Visual Features

Nearby Schools

Nearest Bars And Restaurants

,,,,}

Nearest General Shops

,,}

Nearest Grocery shops

,,}

Nearest Supermarkets

,,}

Nearest Religious buildings

,,}

Nearest Medical buildings

,,,}

Nearest Airports

}

Nearest Leisure Facilities

,,,,}

Nearest Tourist attractions

,,}

Nearest Train stations

,,,,}

Nearest Bus stations and stops

,,,,}

Nearest Hotels

,,}

Tags

Local Market Stats

AirBnB Data

Similar Properties

Meta

High Res Images

Compatible Images

Low res Images

Thumbnails

Raw Images

High Res Floorplan Images

Compatible Floorplan Images

Low res Floorplan Images

FloorplanImages Thumbnail

Raw Floorplan Images