Large plot and double garage; good scope for renovation and added value.
Freehold, chain free sale with immediate vacant possession possibility
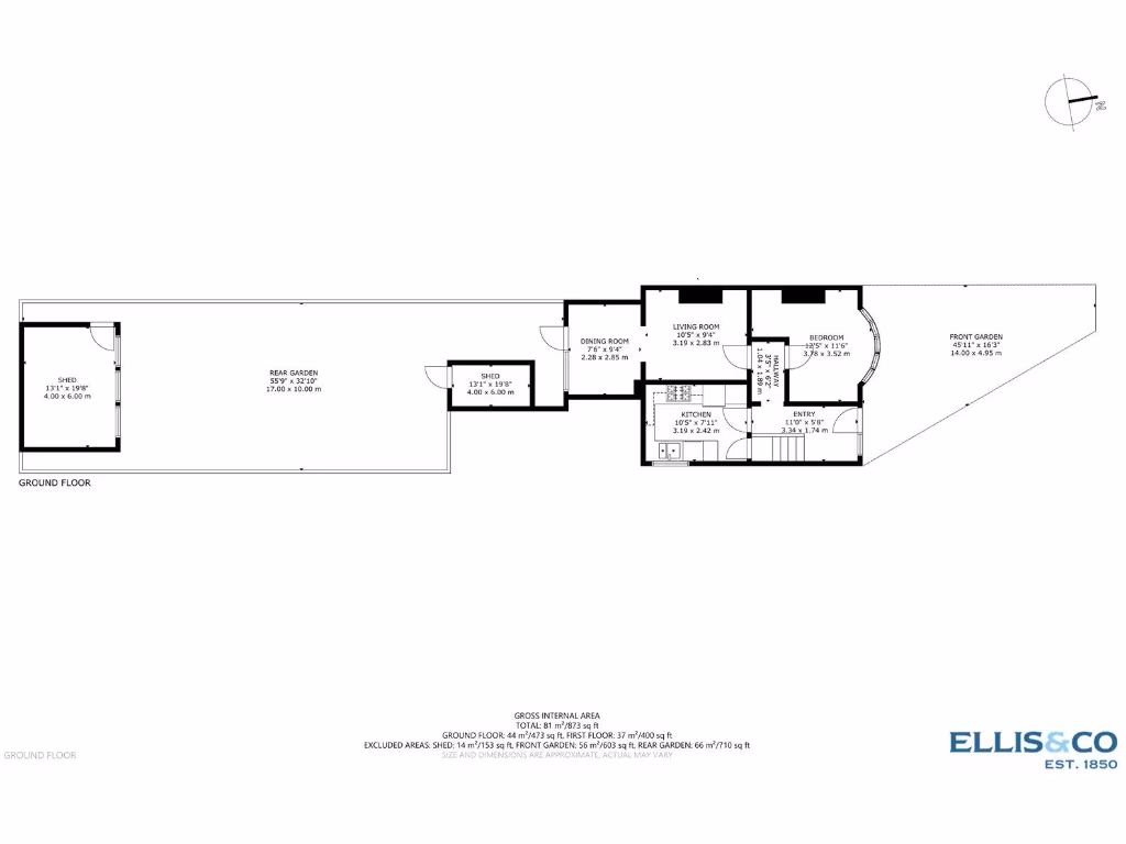
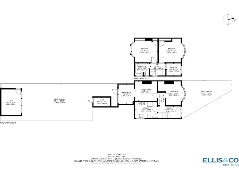
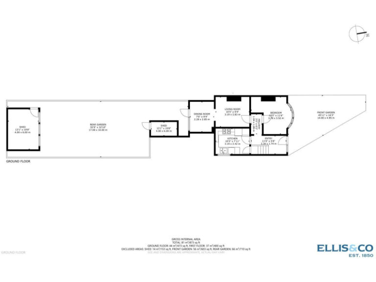
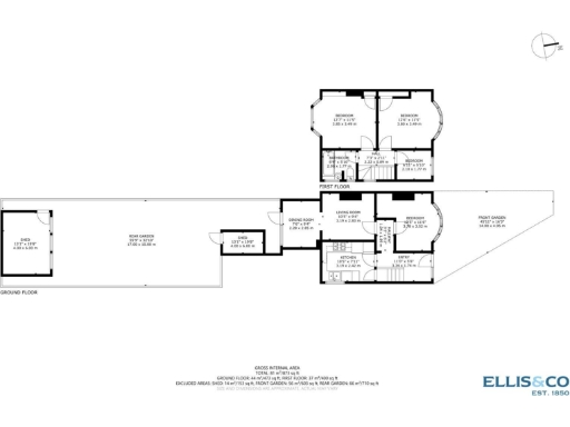
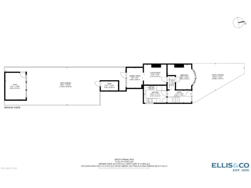
This three-bedroom semi-detached freehold in Park View, Wembley, offers practical space and clear scope for improvement. At about 873 sq ft it includes two reception rooms, an extended diner and an annex — useful for a home office, studio or rental income. The large plot, double garage and off-street parking are rare in the area and suit families or investors seeking added value.
The house blends mid-20th-century character (bay windows, gable roof) with more modern internal touches such as open-plan living and wood flooring. The garden provides a private outdoor space but the exterior and some internal areas will benefit from modernization. There is only one bathroom for three bedrooms, which is a consideration for growing families.
Practical points: the property is chain free, freehold and in a convenient location with excellent mobile signal and fast broadband. Local schools include Good and Outstanding options nearby, making the location attractive to parents. Note that the surrounding area records higher crime levels, so buyers should check local safety information and factor that into their plans.
In short, this is a straightforward opportunity for a first-time buyer or investor who wants a roomy house with annex and garage on a large plot. Expect some renovation work to maximise value; once updated, the combination of space, parking and location could deliver strong everyday convenience or rental returns.
3 bedroom terraced house for sale in Park View, Wembley, HA9 — £550,000 • 3 bed • 1 bath • 904 ft²
3 bedroom semi-detached house for sale in Barn Hill Estate, HA9 — £725,000 • 3 bed • 1 bath
3 bedroom terraced house for sale in Wembley, HA9 — £560,000 • 3 bed • 1 bath • 853 ft²
5 bedroom semi-detached house for sale in Wykeham Hill, Wembley, HA9 — £800,000 • 5 bed • 3 bath • 1635 ft²
3 bedroom terraced house for sale in Wembley, HA9 — £560,000 • 3 bed • 1 bath • 905 ft²
3 bedroom semi-detached house for sale in Lancelot Road, Wembley, Middlesex HA0 — £550,000 • 3 bed • 1 bath • 849 ft²


























































