TR3 6NF - 2 bedroom cottage for sale in Devoran, Truro, TR3

View on Property Piper

2 bedroom cottage for sale in Devoran, Truro, TR3

Summary - Narabo Creek, Devoran TR3 6NF

2 bed 1 bath Cottage

Creek and woodland views across Narabo Creek and Restronguet Creek
Planning consent PA24/04141 to extend to three bedrooms and add balcony
Large, productive gardens bordered by a tumbling stream
Garage and ample parking with separate hardstanding area
Property requires general updating and renovation throughout
Private drainage (septic/soakaway) will need renewal to modern standards
Electric room heaters; no central heating and likely uninsulated stone walls
Very slow broadband in area may affect home working
This charming two-bedroom character cottage sits beside Narabo Creek, offered chain-free and with planning consent (PA24/04141) to extend to three bedrooms and add a first-floor balcony. The property retains period features, generous gardens bordered by a tumbling stream, and wide creek views — a rare combination for a village location between Devoran and Point Quay.

The house is a clear renovation project. Internally it requires updating, the heating is electric room heaters, and the private drainage (septic/soakaway) will need renewal as part of modernisation. Broadband speeds are very slow, and the property has assumed solid granite walls without insulation, so buyers should budget for thermal and services upgrades.

Where it shines is potential: planning consent already granted to reconfigure the layout, create an open-plan ground floor, add a third bedroom and a sunny balcony using the existing flat roof. The plot is large, with productive former kitchen gardens, outbuildings, a single garage and ample parking — attractive for those wanting outdoor space, home-working options or further redevelopment (subject to consents).

This cottage will suit someone looking for a sympathetic project in an affluent, low-crime creekside village. It’s a confident buy for a buyer who values character, views and outside space and is prepared to invest in modernisation to realise the planning permission and improve energy performance.

Property Details

Brochure Descriptions

Image Descriptions

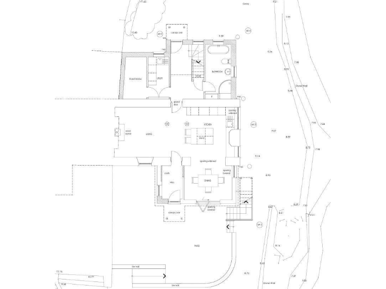
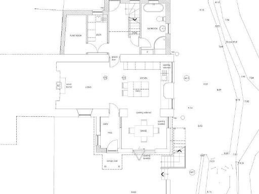
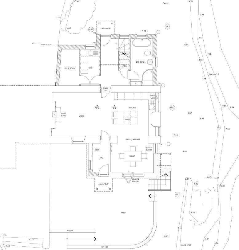
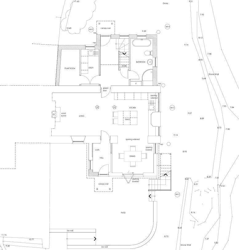
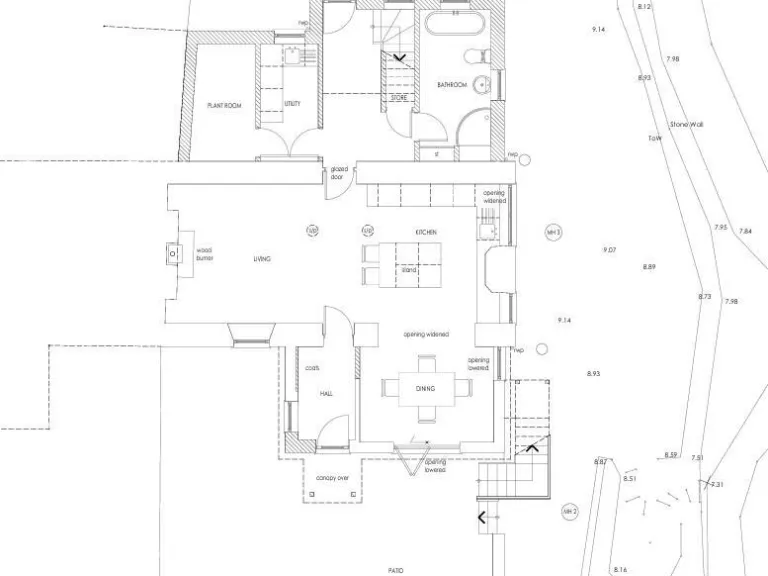
Floorplan Description

Rooms

Textual Property Features

Detected Visual Features

EPC Details

Nearby Schools

Nearest Bars And Restaurants

,,,,}

Nearest General Shops

,,}

Nearest Grocery shops

,,}

Nearest Supermarkets

,,}

Nearest Religious buildings

,,}

Nearest Medical buildings

,,,}

Nearest Leisure Facilities

,,,,}

Nearest Tourist attractions

,,}

Nearest Train stations

,,,,}

Nearest Bus stations and stops

,,,,}

Nearest Hotels

,,}

Tags

Local Market Stats

AirBnB Data

Similar Properties

Meta

High Res Images

Compatible Images

Low res Images

Thumbnails

Raw Images

High Res Floorplan Images

Compatible Floorplan Images

Low res Floorplan Images

FloorplanImages Thumbnail

Raw Floorplan Images