**Standout Features:**
- Newly renovated two-bedroom terraced cottage
- Located in the picturesque Buchanan Castle Estate
- Private garden with modern landscaping, decking, and a courtyard
- Bright interiors with high-quality finishes
- Ample outdoor space perfect for entertaining
- Freehold tenure, offering security and flexibility for homeowners
**Notable Concerns:**
- Council tax is in the expensive range
- Slow broadband speeds may affect remote work viability
- Located in a relatively deprived area
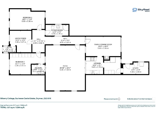
Nestled in the serene Buchanan Castle Estate, this charming two-bedroom terraced cottage, ‘Bilberry Cottage’, has been tastefully renovated to create an inviting retreat perfect for couples, small families, or downsizers. With an expansive living space of 1,264 sq ft, the home features a contemporary fitted kitchen, a dedicated utility room, an ensuite principal bedroom, and a beautiful decked internal courtyard that offers a unique and private area for outdoor gatherings.
The property is surrounded by well-maintained gardens adorned with mature trees, offering a tranquil escape with ample space for outdoor activities. Drymen's amenities, including local shops, cafes, and the historic Clachan Inn, are all within easy reach, making it ideal for buyers seeking both peace and convenience. Just 17 miles from Glasgow City Centre, this property combines rural charm with accessibility. Act quickly—as properties of this caliber in such a desirable location are seldom available for long.
5 bedroom country house for sale in Buchanan Cottage, Main Street, Drymen, G63 0BG, G63 — £625,000 • 5 bed • 5 bath • 2960 ft²
4 bedroom detached house for sale in Endrick Cottage, Balfron, G63 — £485,000 • 4 bed • 3 bath • 1604 ft²
4 bedroom detached house for sale in Crossburn Cottage, by Milngavie, G62 7HJ, G62 — £790,000 • 4 bed • 3 bath • 2713 ft²
3 bedroom semi-detached house for sale in Blairquhamrie Cottage, Auchincarroch Road, Gartocharn, G83 — £210,000 • 3 bed • 2 bath • 1206 ft²
4 bedroom semi-detached house for sale in Mugdock, By Milngavie, G62 — £440,000 • 4 bed • 3 bath • 1450 ft²
4 bedroom detached house for sale in 9 Cattermills, Croftamie, G63 0BB, G63 — £415,000 • 4 bed • 3 bath • 1690 ft²










































































































































