BD5 9NN - 2 bedroom town house for sale in Delamere Street, West Bowl…

View on Property Piper

2 bedroom town house for sale in Delamere Street, West Bowling, Bradford, BD5

Summary - 5 DELAMERE STREET BRADFORD BD5 9NN

2 bed 1 bath Town House

**Property Highlights:**
- Type: Inner Townhouse
- Price: £130,000
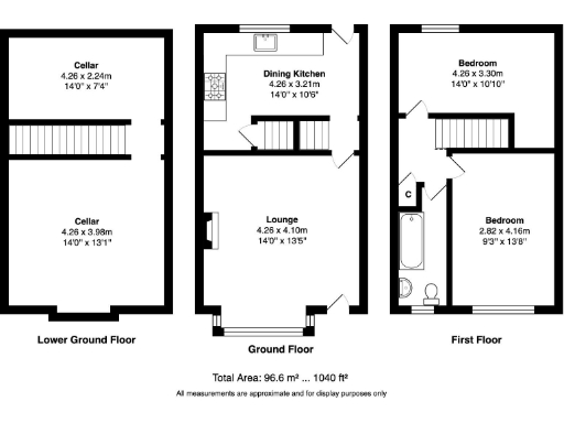
- Size: 689 sq ft (average-sized)
- Bedrooms: 2 doubles
- Bathrooms: 1 (family bathroom)
- Features: Modern kitchen with under-floor heating, two basement rooms, paved front garden, and off-road parking
- Construction: Mid-20th century stone construction
- Condition: Good, with renovation potential
- Location: Close to local amenities and transport networks

This charming inner town house is perfect for first-time buyers and young families, offering comfortable and functional living spaces. The property features a spacious lounge and a contemporary dining kitchen complete with under-floor heating, providing an excellent atmosphere for family gatherings. Upstairs, you'll find two generous double bedrooms alongside a well-appointed family bathroom. The addition of two basement rooms presents flexible opportunities for storage or extra living space. Outside, enjoy the convenience of off-road parking at the rear and a manageable paved garden at the front.

Situated in BD5, this home is well-connected to local amenities including schools, shops, parks, and public transport, making it an ideal choice for those seeking community life. While the area experiences some crime above average, the affordability and proximity to key facilities make this property a valuable option. **Don’t miss out on this opportunity—viewings are highly advised!**

Property Details

Brochure Descriptions

Image Descriptions

Floorplan Description

Rooms

Textual Property Features

Detected Visual Features

EPC Details

Nearby Schools

Nearest Bars And Restaurants

,,,,}

Nearest General Shops

,,}

Nearest Grocery shops

,,}

Nearest Supermarkets

,,}

Nearest Religious buildings

,,}

Nearest Medical buildings

,,,}

Nearest Airports

}

Nearest Leisure Facilities

,,,,}

Nearest Tourist attractions

,,}

Nearest Train stations

,,,,}

Nearest Bus stations and stops

,,,,}

Nearest Hotels

,,}

Tags

Local Market Stats

AirBnB Data

Meta

High Res Images

Compatible Images

Low res Images

Thumbnails

Raw Images

High Res Floorplan Images

Compatible Floorplan Images

Low res Floorplan Images

FloorplanImages Thumbnail

Raw Floorplan Images