**Standout Features:**
- Newly renovated Victorian end-of-terrace house
- Four spacious double bedrooms with en-suite bathrooms
- Impressive open-plan kitchen with central island and bi-folding doors
- Landscaped rear garden perfect for families and entertaining
- Sought-after location a mile from Sidcup station
- Chain-free sale, perfect for swift transactions
- Proximity to quality schools and local amenities
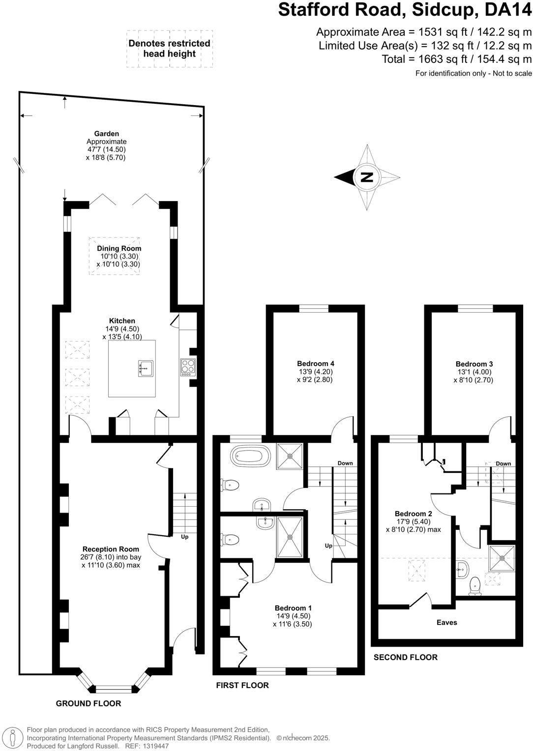
Nestled in the highly sought-after Stafford Road, this stunning newly renovated Victorian end-of-terrace home combines modern comforts with charming period features. With a generous four double bedrooms, including two with en-suite bathrooms, the property offers ample space for families or professionals. The heart of the home features an expansive open-plan kitchen designed for entertaining, complete with a central island and sleek bi-folding doors that lead to a beautifully landscaped garden, ideal for summer gatherings or quiet retreats.
Conveniently located just a mile from Sidcup Station, commuting into London is seamless, while local shops, bars, and amenities are a short walk away for everyday convenience. Families will appreciate the nearby excellent schools, including Longlands Primary and Chislehurst & Sidcup Grammar. This property, with its perfect blend of classic charm and modern elegance, is a rare find in a vibrant community—internal viewing is strongly encouraged. Don’t miss out on your opportunity to own a piece of Sidcup's history!
3 bedroom semi-detached house for sale in Lincoln Road, Sidcup, DA14 — £580,000 • 3 bed • 1 bath • 1283 ft²
4 bedroom semi-detached house for sale in Walton Road, Sidcup, DA14 — £850,000 • 4 bed • 2 bath • 1942 ft²
3 bedroom terraced house for sale in Birkbeck Road, Sidcup, DA14 — £585,000 • 3 bed • 1 bath • 1092 ft²
4 bedroom semi-detached house for sale in Main Road, Sidcup, DA14 — £575,000 • 4 bed • 2 bath • 1333 ft²
2 bedroom terraced house for sale in Felton Lea, Sidcup, DA14 — £400,000 • 2 bed • 1 bath • 943 ft²
4 bedroom detached house for sale in Rectory Lane, Sidcup, DA14 — £1,050,000 • 4 bed • 2 bath • 1854 ft²


























































































































